Loading document...
AP25/0012 PA25/90046/B Erection of a detached bungalow Former Pound Lane Depot Castletown Road Port St Mary IM9 5LT STATEMENT OF CASE AND PROOF OF EVIDENCE ON BEHALF OF THE APPLICANT / APPELLANT DARYL CONSTRUCTION LTD
SUMMARY The application is for development on a disused non-agricultural site in the countryside. Strategic Plan Environmental Policy 1 should not be considered in isolation; the application needs to be assessed against other Strategic Policies 1, 5 and 10 as well. Design considerations should not be assessed in isolation; the design of other properties in the immediate locality needs to be considered as well as the topography of the site The importance of family connections to the area should be taken into account Similar applications with positive results for new non-traditionally designed houses in the countryside are given.
AP25/0012 PA25/90046/B Erection of a detached bungalow Former Pound Lane Depot Castletown Road Port St Mary IM9 5LT STATEMENT OF CASE AND PROOF OF EVIDENCE ON BEHALF OF THE APPLICANT / APPELLANT DARYL CONSTRUCTION LTD
Background
Proposal
Reasons for refusal
“Given also the site is within walking distance of a primary school – 500m -, health centre, shops and community facilities and there is a continuous pavement on the opposite side of the Castletown Road to these from the site and there is a public right of way immediately to the west of the site linking it to the A31 Port St Mary road to the south the proposal clearly complies with Strategic Policy 10. As it is a requirement that all applications also meet the standards for provision of parking spaces - Strategic Plan Transport Policy 7 and Appendix 7,
There is no case for stating that it is in an unsustainable location so far as highways, transport and utilities are concerned. It is fully in accord with Strategic Plan Policy 10 and Transport Policies 1, 4, 6 and 7.
Electricity, water supply and telephone connections are all feasible to adjoining services in the main [Castletown] road and under the public footpath in Pound Lane to the substation at its southern end.”
“Following its use as a depot the site was left in an untidy state, and Daryl Construction was given permission to tidy up both the site and an extension to it and a hard concrete surface was laid down. An application for a certificate of lawful use of the depot was turned down as insufficient evidence of its use could be provided. As the site was not used as part of an independent commercial operation any evidence would have to be based on images and regretfully none seem to exist. However as above there is proof of the acquisition of the site for a depot by the former Department of Transport 60 years ago.”
[The application appended the appropriate deeds.]
---- “The nearest residential properties that would be considered to be the 'character of the streetscene' are only bungalows and this property would clearly be seen as dominant property on the landscape and within "the streetscene" and being of a contemporary design would exacerbate the situation. It is accepted that at either end of the Castletown Road there are properties of one and a half stores and some two stories but their distance from the site means they're not read within the same setting.”
Other considerations
---b) 25/90046/B - Erection of a detached bungalow, Former Pound Lane Depot, Castletown Road.”
Relevant Planning Applications
41 “Thus, I do not consider it would have a harmful effect upon the countryside location or be at odds with Policy EP1. In the same way it would not be at odds with the character and appearance of the lane and surrounds given the existing property, access, and other mature hedging to the front reflecting the character of other residential properties nearby. “
46 ” In this case the site is within a mile of the local, school, shop and church and access is available along a 20mph footpath or through the Public Rights of Way. That seems to me to be relatively convenient and whilst the argument that any new house could not be considered properly part of Sulby, based on the settlement pattern, it is not so far out to discount access to services in Sulby. No argument has been made that it is not in a sustainable location, and it would be as sustainable as the existing dwelling on site and others along this section of road.” ; and
51 “As set out, whilst in principle the development would be at odds with Policies SP4 and SP5, I am not convinced any harm to the countryside or character and appearance of the locality would ensue. The countryside would remain protected and there would be further benefits as discussed which tip the balance in favour of the development.”
Initially refused the Inspector’s report (Appendix 7b) on an appeal stated 80 “The main issues to be considered are:
85 “Overall, I do not consider that the development would harm the appearance or character of the hamlet or the surrounding landscape of the AHLV, as protected by StrP3 and EP1-2 of the IMSP. Nor in my view would it disrupt the individual character, quality or distinctiveness of the hamlet of Ballaveare in terms of StrP4 and paragraph 7.34.1 of the IMSP, as well as the Landscape Character Assessment.” ;
28 Taking all of the above into account, it is respectfully requested that the Appeal Inspector recommends overturning the initial refusal of this application and recommending approval on appeal.
01624 662525 www.findmybus.im www.bus.im
| Place | Service | 1 | s/hs | ||||||||||||||
|---|---|---|---|---|---|---|---|---|---|---|---|---|---|---|---|---|---|
| 2 | 12a | 1 | 2 | 12a | 1 | 2 | 12a | 1 | 2 | 12a | 12 | 1a | 2 | ||||
| Noble's Hospital, main entrance | M | 0851 | — | — | — | 51 | — | — | 1451 | — | — | 1551 | — | — | — | 1651 | — |
| Cranklouane, shelter | 0855 | — | — | — | 55 | — | — | 1455 | — | — | 1555 | — | — | — | 1655 | — | |
| Willaston, shops | — | — | — | 31 | — | — | 1431 | — | — | 1531 | — | — | 1626 | — | — | — | |
| Hailwood Avenue, Cat With No Tail | 0859 | — | — | 36 | 59 | — | 1436 | 1459 | — | 1536 | 1559 | — | 1631 | — | 1659 | — | |
| Birch Hill, shop | — | — | — | 42 | — | — | 1442 | — | — | 1542 | — | — | 1637 | — | — | — | |
| Trigot Avenue, Central Drive | 0908 | — | — | 48 | 08 | — | 1448 | 1508 | — | 1548 | 1608 | — | 1643 | 1658 | 1708 | — | |
| Ballachrink, shop | — | — | 18 | — | — | 1418 | — | — | 1518 | — | — | 1618 | — | — | — | 1718 | |
| Windermere Drive, Windermere Avenue | — | — | 23 | — | — | 1423 | — | — | 1523 | — | — | 1623 | — | — | — | 1723 | |
| Port Jack, shelter | 0910 | — | 30 | 50 | 10 | 1430 | 1450 | 1510 | 1530 | 1550 | 1610 | 1630 | 1645 | 1700 | 1710 | 1730 | |
| Detty Castle, MER Station | M | 0911 | — | 31 | 51 | 11 | 1431 | 1451 | 1511 | 1531 | 1551 | 1611 | 1631 | 1646 | 1701 | 1711 | 1731 |
| Douglas, Lind Street Stand C, arr + | 0922 | — | 42 | 32 | 22 | 1442 | 1502 | 1522 | 1542 | 1602 | 1622 | 1642 | 1657 | 1712 | 1722 | 1742 | |
| Douglas, Lind Street Stand C, dep + | 0930 | — | 50 | 10 | 30 | 1450 | 1510 | 1530 | 1550 | 1610 | 1630 | 1650 | 1705 | 1720 | 1735 | 1750 | |
| Grocery Road, NDC | 0937 | — | 57 | 17 | 37 | 1457 | 1517 | 1537 | 1557 | 1617 | 1637 | 1657 | 1712 | 1727 | 1742 | 1757 | |
| Newtown, Old Chapel | 0945 | — | 55 | 25 | 45 | 1505 | 1525 | 1545 | 1605 | 1625 | 1645 | 1705 | 1720 | 1735 | 1750 | 1805 | |
| Ballacalla Railway Station | V | 0953 | — | 13 | 33 | 53 | 1513 | 1533 | 1553 | 1613 | 1633 | 1653 | 1713 | 1728 | 1743 | 1758 | 1813 |
| Ronaldoway Airport | + | 0957 | — | 17 | 37 | 57 | 1517 | 1537 | 1557 | 1617 | 1637 | 1657 | 1717 | 1732 | 1747 | 1802 | 1817 |
| Castletown Square, Co-op | V | 1005 | — | 25 | 45 | 05 | 1525 | 1545 | 1605 | 1625 | 1645 | 1705 | 1725 | 1740 | 1755 | 1810 | 1825 |
| Colby Bridge, Methodist Church | 1015 | — | 35 | — | 15 | 1535 | 1555 | 1615 | 1635 | — | 1715 | 1735 | — | 1805 | — | 1835 | |
| Garway, opposite Shore Hotel | — | — | — | 53 | — | — | 1553 | — | — | 1653 | — | — | 1748 | — | 1818 | — | |
| Port St. Mary, Harbour, dep | — | — | — | — | — | — | 1600 | — | — | 1700 | — | — | 1755 | — | 1825 | — | |
| Port Erin, Railway Station, arr | M | 1023 | — | 43 | 07 | 23 | 1543 | 1607 | 1623 | 1643 | 1707 | 1723 | 1743 | 1802 | 1813 | 1832 | 1843 |
| Port Erin, Railway Station, dep | M | 1030 | — | — | — | 30 | — | — | 1630 | — | — | 1730 | — | — | 1813 | — | 1858 |
| Port St. Mary, Harbour, arr | 1039 | — | — | — | 79 | — | — | 1639 | — | — | 1739 | — | — | 1822 | — | 1807 |
| Place | Service | Mondays to Fridays | Saturdays | ||||||||||||||
|---|---|---|---|---|---|---|---|---|---|---|---|---|---|---|---|---|---|
| 1 | 2 | 12a | 1 | 2 | 12a | 1 | 2 | 12a | 1 | 2 | 12a | 1 | 2 | 12a | 1 | ||
| Noble's Hospital, main entrance | M | — | — | — | — | — | — | — | 0747 | — | — | — | — | — | — | — | — |
| Cranklouane, shelter | — | — | — | — | — | — | — | 0751 | — | — | — | — | — | — | — | — | |
| Watterson Lane, Cemetery | 0507 | — | 0557 | — | — | — | — | 0753 | 0507 | 0547 | — | — | — | — | — | — | |
| Willaston, shops | — | — | — | — | — | 0833 | — | 0731 | — | — | — | 0636 | — | 0741 | — | 0831 | |
| Hailwood Avenue, Cat With No Tail | 0509 | — | 0559 | — | — | 0700 | — | 0736 | 0755 | 0509 | 0549 | — | 0641 | — | 0746 | — | |
| Birch Hill, shop | 0513 | — | 0603 | — | — | 0705 | — | 0742 | — | 0513 | 0553 | — | 0647 | — | 0752 | — | |
| Trigot Avenue, Central Drive | 0517 | — | 0607 | — | — | 0711 | — | 0748 | 0804 | 0517 | 0557 | — | 0653 | — | 0758 | — | |
| Ballachrink, shop | — | — | — | 0619 | — | — | 0719 | — | — | — | — | — | — | — | — | 0818 | |
| Windermere Drive, Windermere Avenue | — | — | — | 0824 | — | — | 0724 | — | — | — | — | — | — | — | — | 0823 | |
| Port Jack, shelter | 0519 | — | 0609 | 0631 | — | 0713 | 0731 | 0750 | 0806 | 0519 | 0559 | — | 0655 | — | 0800 | 0830 | |
| Detty Castle, MER Station | M | 0520 | — | 0610 | 0832 | — | 0714 | 0732 | 0751 | 0807 | 0520 | 0600 | — | 0656 | — | 0801 | 0831 |
| Douglas, Lind Street Stand C, arr + | 0527 | — | 0617 | 0640 | — | 0722 | 0743 | 0802 | 0818 | 0527 | 0607 | — | 0707 | — | 0812 | 0842 | |
| Douglas, Lind Street Stand C, dep + | 0535 | 0550 | 0620 | 0650 | 0710 | 0730 | 0750 | 0810 | 0830 | 0530 | 0610 | 0650 | 0715 | 0750 | 0820 | 0850 | |
| Grocery Road, NDC | 0535 | 0555 | 0625 | 0656 | 0716 | 0736 | 0757 | 0817 | 0837 | 0535 | 0615 | 0656 | 0722 | 0757 | 0827 | 0857 | |
| Newtown, Old Chapel | 0543 | 0603 | 0633 | 0704 | 0724 | 0744 | 0805 | 0825 | 0845 | 0543 | 0623 | 0704 | 0730 | 0805 | 0835 | 0905 | |
| Ballacalla Railway Station | V | 0550 | 0610 | 0640 | 0711 | 0731 | 0751 | 0811 | 0833 | 0853 | 0550 | 0610 | 0711 | 0738 | 0813 | 0843 | 0913 |
| Ronaldoway Airport | + | 0553 | 0613 | 0643 | 0714 | 0734 | 0754 | 0817 | 0837 | 0857 | 0553 | 0633 | 0714 | 0742 | 0817 | 0847 | 0917 |
| Castletown Square, Co-op | 0600 | 0620 | 0650 | 0721 | 0741 | 0801 | 0825 | 0845 | 0905 | 0600 | 0640 | 0721 | 0751 | 0825 | 0855 | 0925 | |
| Colby Bridge, Methodist Church | 0810 | — | 0700 | — | — | 0811 | 0835 | — | 0915 | 0810 | 0650 | — | — | 0835 | — | 0935 | |
| Garway, opposite Shore Hotel | — | 0628 | — | 0729 | 0749 | — | — | 0853 | — | — | — | 0729 | — | — | 0903 | — | |
| Port St. Mary, Harbour, dep | — | 0634 | — | 0736 | 0756 | — | — | 0900 | — | — | — | 0736 | — | — | 0910 | — | |
| Port Erin, Railway Station, arr | M | 0617 | 0639 | 0707 | 0742 | 0802 | 0818 | 0843 | 0907 | 0923 | 0617 | 0657 | 0742 | — | 0843 | 0917 | 0943 |
| Port Erin, Railway Station, dep | M | — | — | — | — | — | 0825 | — | — | 0930 | 0618 | 0658 | — | — | — | 0925 | — |
| Port St. Mary, Harbour, arr | — | — | — | — | — | 0834 | — | — | 0939 | 0627 | 0707 | — | — | — | 0934 | — |
s/hs — On Schooldays operates 3 minutes later from Castle Rushen High School + — Change of bus may be required
For the full service between Lower Douglas and Willaston, Hailwood Avenue and Birch Hill please see pages 58 to 63
During the TT period Friday 23 May to Saturday 7 June bus services are subject to diversion. Enhanced services operate from Wednesday 28 May to Saturday 7 June. For full details please see the TT period leaflet and our website www.bus.im.
Pre TT Classic and Southern 100: During Billown Circuit closures on 23, 24 & 25 May and 7, 8, 9 & 10 July buses are unable to operate between Castletown and Port Erin/Port St. Mary. Neurer to these events, please see the detailed information displayed at primary bus stops and on our website www.bus.im.
Guidance Note
This decision was made by the Head of Development Management in accordance with the authority delegated to them.
This decision refers only to that applied for under the Town and Country Planning Act 1999 and its subordinate legislation.
A copy of the Officer’s report and any correspondence which led to the assessment and decision is available to view on the Government’s website (via Online Services www.gov.im/Viewapplications) or at the Department’s offices Murray House, Mount Havelock, Douglas.
Implementation The decision does not become final until either
Development must progress in accordance with the plans approved under, and any conditions attached to this approval (irrespective of any changes that may separately be requested at the Building Control stage or by any other Statutory Authority). This approval does not remove the need to also comply with any other relevant legislation.
Any conditions requiring certain works, submissions etc. prior to commencement of development must be fulfilled prior to work starting on site. Failure to adhere to this approval and meet the requirements of all conditions may invalidate this approval or result in formal enforcement action.
Appeal Any appeal must be in writing and submitted to the Department within 21 days of the date of this Notice. The appeal must contain:
Failure to meet all of the relevant above requirements will mean that the appeal cannot be validated.
An appeal form and more detailed guidance are available either from Planning & Building Control, Tel 685950, or from the Department’s website www.gov.im/planningappeal
If this decision becomes final because there is no appeal, the Department’s public reference copy (counter copy) of the planning application may be collected by the applicant or their agent from Murray House. Please note that if the counter copy of the application is not collected within thirty days following the last date on which a planning appeal can be made it will be destroyed without further notice.
PLANNING OFFICER REPORT AND RECOMMENDATIONS Application No. : 21/00857/B Applicant : Daryl Blake Construction Limited Proposal : Erection of a dwelling Site Address : Pound Lane Depot Castletown Road Port St. Mary Isle Of Man IM9 5LT Senior Planning Officer: Mr Jason Singleton Photo Taken : Site Visit : 09.12.2021 Expected Decision Level : Planning Committee
Recommendation Recommended Decision: Refused Date of Recommendation: 16.03.2022 _________________________________________________________________
Reasons for Refusal
R : Reasons for Refusal O : Notes attached to reasons
Interested Person Status – Additional Persons
None _____________________________________________________________________________
Officer’s Report
THE APPLICTION IS BEFORE THE PLANNING COMMITTEE AT THE REQUEST OF THE HEAD OF DEVELOPMENT MANAGEMENT
"It has not been demonstrated that the use of the site for the storage of materials and plant has ever been carried on in a material sense or that it has been used for such for a period of ten years". As such, the site is still considered as land not designated for a particular purpose,
"2.2.1The clearing out of rubble "infill" (hardcore) at the rear section of the site to existing site level of site frontage in order to form a level area for the entire site. This would make the entire site area level with the abutting highway. The site would be infilled with hardcore type 1 to ground area compacted to road level throughout site.
Principle
Unfortunately the proposal would fail on both counts and therefor a refusal can also legitimately be made on that basis.
Exceptional circumstances
3 (paragraphs a, b & d) and Housing Policy 4 identifies three potential circumstances where residential development may be allowed. Firstly, if there is an essential need for an agricultural workers dwelling (agricultural condition attached requiring the property to be used only by full time agricultural workers only, which is proven to be justified); second, conversion of existing rural properties (i.e. traditional Manx stone barn); and thirdly the replacement of an existing dwelling with a new dwelling. Nevertheless, turning to the suitability of the site and noting the lack of support from the local authority, on balance, it is not considered for there to be an exception to be made in this application to create a new residential dwelling in the countryside and would be contrary to Gp3 and HP4.
Visual Impact
I confirm that this decision has been made by the Planning Committee in accordance with the authority afforded to that body by the appropriate DEFA Delegation and that in making this decision the Committee has agreed the recommendation in relation to who should be afforded Interested Person Status.
Decision Made : Refused Committee Meeting Date: 28.03.2022
Signed : J SINGLETON Presenting Officer
Further to the decision of the Committee an additional report/condition reason was required (included as supplemental paragraph to the officer report).
Signatory to delete as appropriate YES/NO See below
Customer note
This copy of the officer report reflects the content of the file copy and has been produced in this form for the benefit of our online services/customers and archive records.
Daryl Blake Construction Limited Unit 5 Harbour Court Loch Road Port St Mary Isle Of Man IM9 5EB
TOWN AND COUNTRY PLANNING ACT 1999 The Town and Country Planning (Development Procedure) Order 2019
In pursuance of powers granted under the above Act, and subordinate Orders and Regulations, the Department of Environment, Food and Agriculture determined to REFUSE an application by Daryl Blake Construction Limited, Ref 21/00857/B, for the Erection of a dwelling at Pound Lane Depot Castletown Road Port St. Mary Isle Of Man IM9 5LT for the following reason(s):
Date of Issue: 29th March 2022
Guidance Note
This decision was made by the Planning Committee in accordance with the authority delegated to it.
This decision refers only to that applied for under the Town and Country Planning Act 1999 and its subordinate legislation.
Appeal Any appeal must be in writing and submitted to the Department within 21 days of the date of this Notice. The appeal must contain:
the grounds for making the appeal;
payment of the planning appeal fee (currently £295); and if relevant, confirmation that the appellant wishes to have the appeal determined by means of an inquiry and payment of the additional inquiry fee (currently £110).
Where the appeal is submitted by the applicant they must:
specify in detail and by reference to material planning considerations the reasons why the appellant disagrees with that determination; and
Where against a refusal, on the grounds of deficient detail or supporting documentation, set out why they consider the information or documentation forming part of the application was sufficient in the circumstance.
If the appeal is submitted by someone who has interested Person Status but is not listed in Article 4(2) of the Development Procedure Order 2019, that person must relate their grounds for making the appeal to issues which they included in representations made prior to the application being determined.
Failure to meet all of the relevant above requirements will mean that the appeal cannot be validated.
An appeal form and more detailed guidance are available either from Planning & Building Control, Tel 685950, or from the Department’s website www.gov.im/planningappeal
If this decision becomes final because there is no appeal, the Department’s public reference copy (counter copy) of the planning application may be collected by the applicant or their agent from Murray House. Please note that if the counter copy of the application is not collected within thirty days following the last date on which a planning appeal can be made it will be destroyed without further notice.
APPENDIX 5 PA25/90046 East of ROughlands, Castletown Road, Rushen Erection of detached dwelling A Location plan with respect to current appeal site



APPENDIX 5A Extract Planning Statement PA25/9001918 Castletown Road, Rushen.
and 7, and other relevant planning policies. While the site is located outside the designated settlement boundary, its proximity to existing residential areas and accessibility to infrastructure support its suitability for development. The design and layout integrate well with the surrounding context, ensuring minimal visual and residential amenity impacts, while appropriate mitigation measures address biodiversity concerns. Parking provisions exceed policy requirements, and the site is well-connected to transport networks, reinforcing compliance with Strategic Policy 10. Although the presence of overhead power lines requires diversion, conditions will ensure compliance with Energy Policy 2 and General Policy 2 (in) before continuation proceeds. Additionally, the site's classification as Class 3/4 agricultural land means the proposal does not result in the loss of high-quality agricultural land under Environment Policy 14. Subject to necessary planning conditions, the development is considered acceptable within the broader planning framework.
9.3 RIGHT TO APPEAL AND RIGHT TO GIVE EVIDENCE
9.3 The Town and Country Planning (Development Procedure) Order 2019 sets out the process for determining planning applications (including appeals). It sets out a Right to Appeal (i.e. to submit an appeal against a planning decision) and a Right to Give Evidence at Appeals (i.e. to participate in an appeal if one is submitted).
9.2 Article A10 sets out that the right to appeal is available to:
a) applicant (in all cases); b) a Local Authority; Government Department; Plans Utilities; and Plans National Heritage that submit a relevant objection; and c) any other person who has made an objection that meets specified criteria.
9.3 Article 8(2)(a) requires that in determining an application, the Department must decide who has a right to appeal, in accordance with the criteria set out in article A10.
9.4 The Order automatically affords the Right to Give Evidence to the following (no determination is required):
a) any appellant or potential appellant (which includes the applicant); b) the Department of Environment, Food and Agriculture, the Department of Infrastructure and the local authority for the area; c) any other person who has submitted written representations (this can include other Government Departments and Local Authorities); and d) in the case of a petition, a single representative.
9.5 The Department of Environment, Food and Agriculture is responsible for the determination of planning applications. As a result, where officers within the Department make comments in a professional capacity they cannot be given the Right to Appeal.
7.4.6 Based on these factors, the proposed development complies with General Policy 2 (g) & (h) of the Strategic Plan and aligns with the principles established by the Residential Design Guide. The design ensures that no unacceptable impacts on neighbouring amenity would arise, allowing the development to integrate seamlessly into its surroundings.
7.5 IMPACT ON HIGHWAY/PARKING
7.5.1 The proposed development incorporates adequate on-site parking provisions, exceeding the minimum standards set out in the Strategic Plan. The site design ensures that multiple vehicles can be accommodated off-road, reducing potential strain on surrounding streets. Additionally, Highways Services have raised no objections, confirming that the proposal raises no significant negative impact upon highway safety, network functionality and/or parking. Visibility delays, as evidenced in the submitted site plan, are considered acceptable for access subject to conditions as required by DOI Highways.
7.5.2 Strategic Policy 10 recognizes the critical link between development location and the transport network, emphasizing minimizing private car journeys, optimizing public transport use, and encouraging pedestrian movement. The current location meets these criteria, being situated near a bus transit corridor in Port St. Mary and well-connected to existing built development within the settlement boundary.
7.5.3 Given these factors, the proposal aligns with the provisions of Transport Policies 4 and 7 and complies with General Policy 2 (h) and (i) and Strategic Policy 10 of the Strategic Plan. The development will not create adverse highway safety impacts, and its design ensures integration with sustainable transport networks, reinforcing its suitability within the broader planning framework.
7.6 LOSS OF HIGH-QUALITY AGRICULTURAL LAND (EP 14)
7.6.1 Environment Policy 14 allows for development on agricultural land if they do not result in the loss of high-quality agricultural land. High quality agricultural land is defined as being Class 1/2, Class 2/3 and Class 3/2 as annotated on the Agricultural Land Use Capability Map. The proposal site is shown as being within Class 3/4 and as such falls outside the defined land protected by EP14.
7.6.2 Whilst the class of agricultural soils on the farm (Class 3) does not imply that the soils should not be managed appropriately, as the Strategic plan does not in any way imply that Class 3 soils should be poorly managed or used unsustainably as majority of the agricultural soils on the Island (80.26%) fall within Class 3 soils, the nature and scale of the build is such that the agricultural potential of the adjoining fields would not be compromised, save for the section of the broader field area used for the proposed development, which would be removed from the field. Notably, the proposed site area is currently unused for agriculture, as it is covered in bramble and gome scrub. Given these factors, the proposal satisfies the requirements of Environment Policy 14, as it does not result in the loss of high-quality agricultural land.
7.7 IMPACT ON BEDDIVERSITY (EP4 & 5, & GP2)
7.7.1 The impact on ecology and biodiversity within the site primarily relates to the removal of vegetation required for the erection of the new dwelling, hardstanding, and landscaping areas. The site consists of bramble and gome scrub, which the DEFA Ecosystem Policy Team has identified as a habitat for nesting birds and invertebrates. Its removal carries ecological significance, requiring mitigation to safeguard biodiversity. The findings in Ecology Vanvlin's Site Walkover and Ecological Mitigation (Technical Note) dated March 2025 have been reviewed and are considered appropriate in assessing the site's ecological impact.
7.7.2 To address ecological concerns, mitigation measures such as the integration of native hedging and other ecological enhancements will be necessary, alongside the inclusion of bird and bat boxes to provide habitats for local species. Additionally, restrictions on external lighting and ensuring vegetation removal occurs outside the nesting season will help minimize disruption to wildlife. These strategies ensure compliance with Environment Policies EP 4 and 5, and General Policy 2, effectively balancing biodiversity preservation with site development.
7.7.3 While vegetation removal will impact biodiversity, the proposed mitigation ensures compliance with Environment Policies EP 4 and 5, and General Policy 2, maintaining ecological integrity alongside development.
7.8 PROXIMITY TO POWER LINES (Energy Policy 2 & GP 2)
7.8.1 Energy Policy 2 safeguards land within 9 meters of overhead high-tension power cables to ensure public safety and maintain infrastructure integrity. Whilst it is not clear whether the power lines that go over the site are high tension power lines, Manx Utilities Authority has confirmed that an overhead line crosses the development site, with a pole on the western boundary outside the applicant's landownership, requiring third-party consent for any diversion. Additionally, overhead lines on the eastern boundary necessitate unrestricted access for maintenance and repairs.
7.8.2 Manx Utilities Authority's Electricity division has since removed its objection, indicating that concerns regarding infrastructure impact and safety may now be addressed. While this suggests the proposal can move forward, final compliance with Energy Policy 2 and General Policy 2 (m) depends on securing all necessary approvals and ensuring the development meets established safeguarding standards.
7.8.3 Compliance with General Policy 2 (m) requires consideration of safety and infrastructure constraints in development design. The proposed site layout does not currently meet approved clearance requirements, and while a diversion plan has been suggested, it has not been formally agreed upon. To ensure compliance with General Policy 2 and Energy Policy 2, conditions will be imposed requiring the diversion of the power line before the erection of the dwelling, ensuring appropriate safety measures are in place prior to construction.
7.9 OTHER MATTERS
7.9.1 Excavation on site (Minerals Act 1986)
7.9.1.1 As part of the proposal to create the new dwelling, significant soil excavation will be required. While excavation itself does not pose a direct planning concern, the removal of excavated material from the site would require prior consent from the Department of Environment, Food, and Agriculture (DEFA) under the Minerals Act 1986. Additionally, where minerals are extracted and removed beyond the surface owner's landholding, royalty payments may become payable. The sloping nature of the site suggests that some level changes will be necessary, particularly in relation to the garage area, meaning that excavation would need to be adequately accounted for and communicated accordingly to the DEFA Energy & Minerals Team.
7.9.1.2 Given the consultation responses received from DEFA, it is necessary for the applicant to ensure compliance with mineral extraction regulations by securing the appropriate consents. These matters, however, are subject to separate legislative processes beyond the scope of planning approval.
8.0 CONCLUSION
8.1. Overall, the proposed development aligns with the requirements of General Policy 2, Strategic Policies 1 and 2, Environment Policies 4 and 5, Energy Policy 2, Transport Policies 4
7.2.1 The Strategic Plan establishes a general presumption against development in areas not designated for a particular purpose, emphasizing the protection of the countryside (EP 1 and GP3). However, certain factors must be considered regarding the specific context of the site.
7.2.2 The site is located on the edge of the settlement boundary of Port St. Mary and is bordered by established dwellings within a predominantly residential area. While the site and its adjoining neighbours to the east and west technically fall outside the settlement boundary and are classified as countryside, they exist within an urban transition margin. Although the Area Plan does not designate these areas as sustainable urban extensions, they align with many defining characteristics of such locations due to their proximity to essential facilities and services that support the settlement. Additionally, the site's easy integration into the settlement's fabric, particularly in terms of transportation and connectivity, strengthens its suitability and aligns with the provisions of Strategic Policy 10. While the Area Plan for the South classifies the site as 'Land not designated for any particular purpose,' the proposed residential use is highly compatible with the surrounding residential context. The physical relationship between the site and its neighbouring properties makes it impractical to separate it from existing residential development, reinforcing its logical urban connection, aligning broadly with the principles advocated by Housing Policy 4.
7.2.3 Although the proposed development does not comply with GP3, which restricts development in non-designated areas, Strategic Policies 1 and 2 provide a framework supporting the establishment of new dwellings within sustainable extensions of existing settlements and unused lands, optimising the use of available infrastructure, facilities, and services. Furthermore, the site's position relative to adjoining properties suggests that the development would constitute appropriate infill, utilizing available land efficiently while maintaining compatibility with existing residential patterns.
7.2.4 Given the sustainable urban extension characteristics of the site, its proximity to settlement facilities, and the flexibility provided by Strategic Policies 1 & 2, the principle of developing the designated section of the site for residential purposes is well-founded. The proposal aligns with broader strategic planning objectives, ensuring a logical extension of residential development in a manner that could not be judged to be averse to the existing settlement structure.
7.3.1 In assessing the design and visual impact of the proposed development, it is considered that the overall layout, design and external appearance of the proposed dwelling is in keeping with the context of the surrounding street scene which is varied in its current context; comprising a balanced mix of modern and traditional dwellings, some of which are particular basis in terms of architectural design and detailing.
7.3.2 Likewise, the external materials align with the varied material use in the immediate vicinity, whilst the overall building height, proportions, fenestration size and positions, are also largely in keeping with the locality. Additionally, the fact that the new dwellings would be built into the landscape would serve to minimise the visual impact upon the site and
surroundings, whilst helping to blend the new dwellings into its surroundings. It is also important to note that the design and layout which allows for split levels fits with the site character and topography which rises from the site frontage and adjoining highway.
7.3.3 Granting, the new dwelling would still stand out and be noticeable, given the topography of the site and the proposed number of floors, the new dwelling would fit in with the character of the site and street scene which is varied in its current context. Moreover, the proposal would be reflective of its time when compared to the existing dwellings in the area, being contemporary in design and would serve to add to the diversity of dwelling design and styles in the area.
7.3.4 Accordingly, the overall design, siting, layout, size, landscaping and finishes of the dwelling would all be acceptable and would create a pleasant housing development, without having significant adverse visual impacts to the amenities of the street scene, site, or area.
7.4.1 When assessing potential impacts on neighbouring properties, it is crucial to evaluate the relationship between the proposed dwelling and its directly adjoining neighbours, as well as those situated to the south and separated by Castletown Road. This will determine whether the development poses any risk to residential amenity.
7.4.2 Regarding Roughlands to the west, the proposed dwelling would be positioned approximately 23.6 meters from its western external wall and 19.2 meters from the mature landscaping along the boundary. This separating distance, combined with the site's topography and the single-storey appearance of the dwelling from this vantage point, ensure there are no concerns regarding overlooking, overshadowing, or overbearing impacts for Roughlands.
7.4.3 For Sandpiper to the east, the proposed dwelling would sit 29.9 meters from this neighbouring property, with a 7.5m gap to the boundary. Although the terrace would also be 7.5 meters from the boundary, the presence of mature landscaping and established trees significantly mitigates privacy concerns. Additionally, the sections of the dwelling closest to Sandpiper are largely single storey, further reducing the potential for overlooking. The substantial separating distance ensures there would be no overshadowing or overbearing effects.
7.4.4 In relation to Bramble Tor, northeast of the proposed dwelling, the neighbour's position approximately 28 meters away diminishes any risk of overlooking. This is further mitigated by the single-storey nature of the rear elevation, which, due to the site's topography and elevated rear garden, ensures that the new dwelling presents only a single-storey profile from the rear. Consequently, the proposal does not result in loss of light or undue visual intrusion.
7.4.5 Concerning the properties south of Castletown Road; Belmont, Kinreen, Tides Reach, and Overbourne, the separating distance of more than 20 meters in all cases mitigates potential privacy concerns. Specifically, the first-floor terrace of the proposed dwelling would maintain a 31-meter gap to Belmont (with 19.8 meters to its front garden, which is not a private area). The distances to Kinreen, Tides Reach, and Overbourne are 50 meters, 23.3 meters (to the rear of the newly converted garage), and 28 meters, respectively. Additionally, the rear gardens of Tides Reach and Overbourne are effectively shielded from overlooking due to the position and height of boundary walls and fencing, as well as the lower elevation of the gardens compared to Castletown Road.
5.0 Planning History
5.1 Planning approval was granted under PA 00/0005/8 for the extension and landscaping of the Southern Civic Amenity site into parts of Field 414623 on 31 Oct 2000. This, however, did not stretch onto the current site for the proposed application.
6.0 REPRESENTATIONS
Copies of representations received can be viewed on the Government's website. This report contains summaries only.
6.1 DOI Highway Services find the proposal to have no significant negative impact upon highway safety, network functionality and/or parking. They note that HDC would not support a secondary access onto the adopted highway due to Manual for Manx Road policies - the layout should ideally be amended so the driveway on the eastern side does not go up to the front boundary of the property. Conditions on site access, site access visibility, driveway handstanding within 6m of the adopted highway, internal vehicular driveway layout and parking, should be attached to permission and retained thereafter (21 January 2025).
6.2 DOI Highways Drainage (11 February 2025):
They state that allowing surface water runoff onto a public highway is prohibited under Section 58 of the Highway Act 1986 and relevant guidance in the Manual for Manx Roads. They advise the applicant ensure compliance with these regulations.
6.3 Manx Utilities Authority - Electricity (29 January 2025):
6.3.1 Manx Utilities Authority - Electricity (20 March 2025):
6.4 DEFA Ecosystem Policy Team (8 April 2025/21 February 2025):
a soft landscaping plan incorporating native hedging to be submitted to Planning and approved in writing before works commence. b A bird brick plan to be submitted and approved in writing before works commence, recommending integrated bird bricks suitable for starlings or house sparrows instead of bird boxes, as bricks do not require replacement. c A plan detailing measures to prevent bat strikes on clear glass balustrades to be submitted and approved in writing before works commence, with acceptable mitigation such as etching, ultraviolet coatings, or decals.
6.5 DEFA Energy & Minerals Team Consultation:
6.5.1 Comments Received 21 January 2025:
6.5.2 Comments received 26 February 2025:
6.6 Arbery and Rushen Parish Commissioners
6.6.1 Comments received 23 January 2025:
6.6.2 At their February meeting, the Commissioners considered and supported the application (23 February 2025).
6.7 No Comments have been received from neighbours.
7.0 ASSESSMENT
7.1 The key considerations in the assessment of this planning application are:
2.4 The new dwelling would be finished externally in painted render combined with stone cladding on the external walls, while the roof would be finished in artificial slate with solar photovoltaic panels integrated in an in-roof tray. All the window units would be UPVC or powder-coated aluminium frames (colour not defined) with clear glazing. The fesci's and bergaboard would be composite or powder-coated aluminium (colour not defined), and rainwater goods would be powder-coated aluminium or UPVC (colour not defined). The garage doors would be coated galvanized steel or composite (colour not defined). External decking would be finished in timber or composite timber decking, and balustrades would be frameless glass.
2.5 A new soakaway would be provided for the site to cater for surface water runoff, while foul sewage would be discharged to the existing systems in the area. A 5m wide access connected to a 5m wide arched driveway would be provided for the site.
2.6 The application is supported by a Client Planning Statement, Design and Planning Statement prepared by Modus Architects, Site Walkover and Ecological Mitigation (Technical Note) prepared by Ecology Varnin and dated March 2025, Biodiversity Plan, and Correspondence to address comments from DEFA the Energy & Minerals Team (dated 29 January 2025).
3.0 PLANNING POLICY
3.1 Site Specific:
3.1.1 The site lies within an area not zoned for any particular purpose on the Area Plan for the South 2011, and the property is not within a Conservation Area or a Flood Risk Zone, although parts of the northern boundary sits in an area considered to be prone to high flood risks. There are no registered trees on site, and the site is not within a registered tree area.
3.2 Area: Area Plan for the South 2013
"The Housing Chapter also sets out in more detail the proposals to secure the provision of housing through a process of 'Plan, Monitor and Manage.' The Area Plans are to include Urban Capacity Assessments as part of a sequential approach to the provision of new housing. This approach will seek to develop within existing settlements, or on previously developed land or by the redevelopment, regeneration, and conversion of existing housing. Only then will greenfield sites be brought forward, as extensions to existing settlements."
"In accordance with the Strategic Policies set out in the Isle of Man Strategic Plan, key objectives of the Area Plan are:
"Area Plans will include Urban Capacity Assessments as part a sequential approach to the provision of new housing. This approach will seek to develop within existing settlements, or on previously developed land or by the redevelopment, regeneration, and conversion of existing housing. Only then will greenfield sites be brought forward, as extensions to existing settlements." (Island Spatial Strategy, Isle of Man Strategic Plan, 2007, Page 23)".
3.3 National: STRATEGIC PLAN (2016)
3.3.1 Relevant Strategic Plan Policies:
4.0 OTHER MATERIAL CONSIDERATIONS
4.1 Residential Design Guide (2021)
4.1.1 This document provides advice on the design of new houses and extensions to existing property as well as how to assess the impact of such development on the living conditions of those in adjacent residential properties and sustainable methods of construction.
4.2 The Isle of Man's Biodiversity Strategy (2015 - 2025)
4.2.1 The Department's Biodiversity Strategy is capable of being a material consideration. It seeks to manage biodiversity changes to minimise loss of species and habitats, whilst seeking to maintain, restore and enhance native biodiversity, where necessary.
4.3 Minerals Act 1986.
4.3.1 The ownership of minerals in the Isle of Man is vested in the Department of Environment, Food and Agriculture under the Minerals Act 1986. The Department permits operation/developers to extract minerals via mining losses, mining licences and mining permissions and the Minerals Act 1986 broadly sets out the circumstances and procedures by which these Agreements are granted.
The development shall be carried out in accordance with the approved scheme and as such thereafter.
Any retained tree or plantings within the site which within five years of the approved development being occupied or completed (whichever is the later) dies, are removed or become seriously damaged or diseased shall be replaced by a similar species, of a size to be first approved in writing by the Department, during the next planting season or in accordance with a programme of replacement to be agreed in writing with the Department.
Reason: In the interests of protecting and enhancing the biodiversity of the environment.
C 10. Prior to commencement of development hereby approved, a bird brick plan shall be submitted and approved in writing, recommending integrated bird bricks suitable for starlings or house sparrows instead of bird boxes. The bird and bat mitigation measures shall then be fully implemented in accordance with the approved plans and retained as such thereafter.
Reason: To ensure adequate safeguards for the ecological species existing on the site and locality, in line with Environmental Policies 4 and 5.
C 11. The clear glass balustrades must be installed with methods for the prevention of bird strike which may include etching, decals or ultraviolet coatings prior to the building being brought into use and shall be retained as such thereafter.
Reason: In the interest of preventing bird strikes, given the large size of glazing and location of dwelling.
C 12. Prior to the commencement of development hereby approved, a formal power line diversion plan shall be submitted to and approved in writing by the Department. The plan shall ensure compliance with Energy Policy 2 and General Policy 2 (m), addressing public safety, infrastructure integrity, and required clearances. The diversion works shall be fully implemented prior to the erection of any dwelling on-site and retained as such thereafter.
Reason: To ensure the safe and compliant relocation of the existing overhead power lines, maintaining public safety and infrastructure integrity in accordance with Energy Policy 2 and General Policy 2 (m).
Reason for approval: The proposed development does not fully align with the broader principles of General Policy 3 (GP 3), Housing Policy 4 (HP 4), Environment Policy 1 (EP1), and Strategic Policy 3 (SP 3), which seek to restrict development outside designated areas and preserve the countryside. However, Strategic Policies 1, 2, and 10 provide flexibility for sustainable extensions to existing settlements, particularly where access to infrastructure, transport, and essential services is optimized. The site's proximity to existing residential areas and public transport networks, including a bus transit corridor in Port St. Mary, ensures strong connectivity, reducing reliance on private car use in line with Strategic Policy 10. The design and layout integrate well with the built environment, maintaining visual and residential amenity while biodiversity concerns are addressed through mitigation measures. The proposal exceeds parking requirements, ensures adequate highway access, and incorporates necessary infrastructure safeguards, including conditions for power line diversion under Energy Policy 2 and General Policy 2 (m). Additionally, the site's Class 3 agricultural soil classification confirms it does not result in the loss of high-quality agricultural land, meeting the requirements of Environment Policy 14.
It is recommended that the following organisations should NOT be given the Right to Appeal:
Planning Officer's Report
THIS APPLICATION IS REFERRED TO THE PLANNING COMMITTEE AS THE PROPOSAL COULD BE CONSIDERED CONTRARY TO THE DEVELOPMENT PLAN BUT IS RECOMMENDED FOR APPROVAL
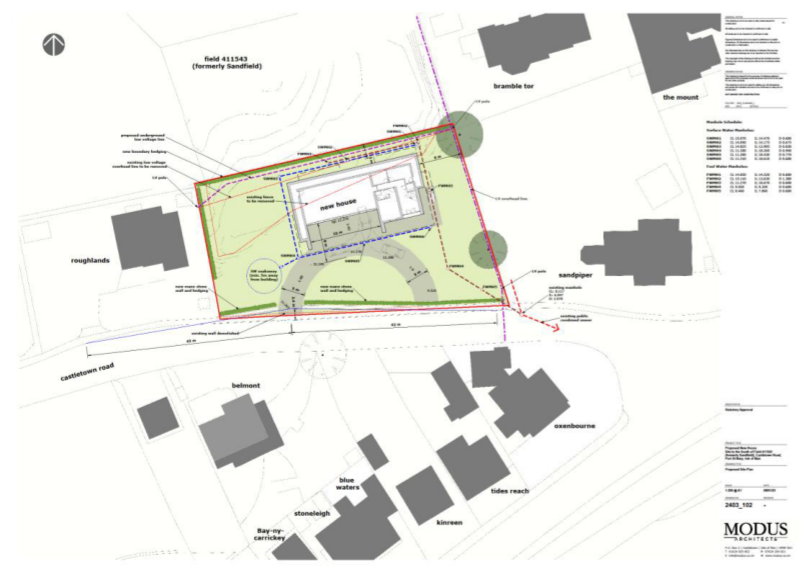
1.0 THE APPLICATION SITE
1.1 The application site is part of Field 411543, which sits to the north of Castletown Road, Port St. Mary, and on the edge of the settlement boundary of Port St. Mary. The site sits between two dwellings: 'Roughlands' to the west, and 'Sandpiper' to the east, with the northern boundary backing onto the broader field area for Field 411543. The site frontage which fronts onto the Castletown Road directly overlooks the front boundary of 'Belmont', and rear elevations of 'Kinnew', 'Tides Reach', and 'Overdoume', which are all situated along Beach Road, Port St Mary.
1.2 This site which sits close to the junction between Castletown Road and Shore Road, Port St Mary, rises towards the northern boundary and the adjoining field area to the north. The site frontage is bounded by a low stone boundary wall which rises to about 1m.
2.0 THE PROPOSAL
2.1 Planning approval is sought for erection of a new dwelling on site. The proposed scheme would be for a contemporary two storey detached dwelling types.
2.2 The proposed dwelling which would be a split-level dwelling with floor area measuring about 298sqm on the ground floor, and about 295sqm on the first floor, resulting in a dwelling that measures about 593sqm.
2.3 The new dwelling will have a layout accommodating an integral four car garage, a bedroom with ensuite, a utility room, plant room, and entry area with foyer and spiral stairway, and a lift area on the ground floor. The first floor would support an open plan living room/kitchen/dining area, a hallway with access to the rear garden which is on the same level as the rear elevation which appears a single storey, two bedrooms each with ensuite, a study, WC adjoining the lift and stair area. There would be a wrap-around first floor terrace area that measures about 170sqm, which sits to the front elevation of the dwelling and offers views towards the bay. Access to the first-floor terrace would be via an external stairway to the side (east elevation) of the dwelling.
| PLANNING AUTHORITY AGENDA FOR 19th May 2025 |
| Item 5.7 Proposal: Site Address: Encluse of a new dwelling Plot East Of Roughlands Castletown Road Port St Mary Isle Of Man IMS 5LT |
| Applicant: Mr & Mrs Russell and Jane Collister Application No.: 25/00019/8 - did to view Planning Officer: Paul Violgeh |
| RECOMMENDATION: To APPROVE the application |
| Recommended Conditions and Notes for Approval C: Conditions for approval N: Notes (if any) attached to the conditions |
| C.1. The development hereby approved shall be begun before the expiration of four years from the date of this decision notice. |
| Reason: To comply with Article 26 of the Town and Country Planning (Development Procedure) Order 2019 and to avoid the accumulation of unimplemented planning approvals. |
| C.2. Prior to the occupation of any dwelling hereby approved, the garage, car parking and manoeuvring areas shall be provided in accordance with the approved plans. Such areas shall not be used for any purpose other than for purposes associated with the development and shall remain free of obstruction for such use at all times. |
| Reason: To ensure that the strategic plan car parking standards are met in the interest of highway safety. |
| C.3. The development hereby approved shall not be occupied or operated until all access design and visibility spikes have been provided in accordance with the approved plan (Drawing No. 2403_102 Rev A). The visibility spike shall have no obstructions greater than 1m in height within the spiky zone and shall be retained as such thereafter. |
| Reason: To ensure that sufficient provision is made for off-street parking in the interests of highway safety. |
| C.4. The access to the site shall be bound and consolidated within 5 meters of the adopted highway boundary. |
| Reason: To ensure a durable and stable surface that prevents debris from being carried onto the public highways, in the interest of highway safety. |

of the new Area Plan. The draft Plan is still in draft form and inevitably carries little weight. In addition, there is no dispute that the site lies within the same study area as that given approval. I see no reason why, in the same way, consideration of this site would also not prejudice the draft Plan.
Other matters

having significant impacts upon the residential amenity of neighbouring properties. The dwelling would not harm the character and appearance of the surrounding countryside and would accord with Policy EP1 of the Isle of Man Strategic Plan2016. Furthermore, when added to the further benefits demonstrated, planning policy considerations relating to development in the countryside are outweighed.
R J Perrins MA Independent Inspector 23 September 2022
Schedule of Conditions C1. Approval of the following (hereinafter called "the reserved matters") shall be obtained from the Department in writing before any development is commenced:
impacts on bat species together with mitigation, where appropriate, including a timetable for its implementation. The development shall not be carried out unless in accordance with the approved details. Reason: To provide adequate safeguards for the bats. C6. Prior to the commencement of any works an Energy Statement shall be submitted and approved in writing by the Department (planningplanning) which demonstrates the new dwelling has a Standard Assessment Procedure (SAP) rating of at least 97 (or similar rating system) and prior to the occupation of the dwelling a further Energy Statement post completion shall be submitted to and approved in writing by the Department (planning) to demonstrate that the SAP rating of at least 97 (or similar rating system) has been achieved. Reason: A reason why the application is considered acceptable is due to the overall environmental impacts as outlined on Housing Policy 14 and namely the eco efficiency credentials of the new dwelling. C7. The development hereby approved shall not be commenced until a tree planting plan is submitted to and agreed in writing by the Department. Where applicable the plan shall adhere to the recommendations of BS8545:2014 (Trees: from nursery to independence in the landscape - recommendations) and in all cases shall include the following details:
Site Inspection: Monday 23 October 2023 Appeal made by Oliver Blaker and Eleanor Kelly against the refusal of a planning application for approval in principle for the erection of a dwelling and garage on land adjacent to Merrion Park, Old Castletown Road, Port Soderick, Isle of Man, IM4 1BB. _________________________________________________________ Procedural Matters
regarded as the most important consideration unless the development would not harm the character and quality of the landscape or its location is essential.
with Claremont and Merrion Park, it forms part of a field running down to the road between Fuschia Cottage and the access track, until Claremont and then Merrion Park were approved respectively about 2005-2007. The Case for the Appellants The material points are: Appraisal
8 in failing to identify any small settlements for the provision of appropriate new development. The appeal proposal falls into that category, being for a young local couple with local connections and is designed to marry in with existing development.
the countryside which would arise from the development, as recognised by former Ministers as key to the application of EP1-2 of the IMSP.
consideration should be given to this proposal, bearing in mind its location, previous development in the locality and the favourable officer comments made in connection the earlier Merrion Park approval.
There is an extensive area of montbretia in the road verge that would require to be removed to facilitate the construction of the new access. Montbretia is a Wildlife Act 1990 Schedule 8 invasive non-native plant species. A montbretia avoidance and eradication plan has been submitted and, in the event that planning approval is granted, the works should be required to comply with this plan in order to comply with EP4-5 of the IMSP.
Miss Pippa Edmonds The Bungalow Ballamanagh Road Sulby Lezayre Isle of Man IM7 2H8
Telephone: (01624) 685958 Email: [email protected] Contact: Mr S Stanley Our Ref: MEC /AP22/0020 Date: 14th November 2022
Dear Miss Edmonds,
PA No: 21/01161/A
Address: The Bungalow, Ballamanagh Road, Sulby, Isle of Man, IM7 2HB
Proposal: Approval in principle for the erection of a new dwelling, closing up of existing access, creation of new access and demolition of part of The Bungalow, addressing details of the means of access
I refer to the appeal in respect of the above planning application.
In accordance with the provisions of The Town and Country Planning (Development Procedure) Order 2019, I herewith give notice of the appeal decision.
The Minister for Environment, Food and Agriculture, the Hon C Barber MHK, has considered the report, concurs with the appointed person's conclusions, and accepts the recommendation that the appeal should be allowed. Accordingly, she has directed that the Department's refusal of the application should be reversed, and that the application should be Approved subject to conditions. Formal notice of this decision is attached.
Yours faithfully
Redacted
Mr S Stanley Interim Chief Executive For and on behalf of the Minister
cc. Penketh – Millar, 23 West Quay, Ramsey, Isle Of Man, IM8 1DL
Miss Pippa Edmonds The Bungalow Ballamanagh Road Sulby Lezayre Isle of Man IM7 2HB
In pursuance of his powers under the above Act and Order/Regulations, the Minister for the Department of the Environment, Food and Agriculture, the Hon C Barber MHK does hereby in the name of and on behalf of the Department APPROVE planning application 21/01161/A by Miss Pippa Edmonds for Approval in principle for the erection of a new dwelling, closing up of existing access, creation of new access and demolition of part of The Bungalow, addressing details of the means of access - The Bungalow, Ballamanagh Road, Sulby, Isle of Man, IM7 2HB, subject to the following conditions:-
(a) the details of siting, design, external appearance and internal layout of the new dwelling; (b) the drainage and landscaping of the site; and (c) the details of the proposed works to the existing dwelling (The Bungalow), including design, external appearance and internal layout.
Reason: To comply with the Town and Country Planning (Development Procedure) Order 2019.
Reason: To avoid the accumulation of unimplemented planning approvals.
(a) the new dwelling limited to a floor plan of 192 square meters; (b) the surface treatment of any roadways and other parts of the site which will not be covered by buildings; (c) all external materials to be used in the development; (d) existing and proposed ground and floor levels; (e) foul and surface water drainage; (f) existing and proposed ground and floor levels; and (g) provide sustainable drainage systems.
Reason: In the interest of the character of the area and drainage on/off site.
(a) Bicycle, EV charging points and car parking provisions in accordance with the adopted standard; (b) Waste bin storage and collection; (c) Integrated measurers to support bio-diversity net gain; and (d) How the site is to be subdivided between dwellings to create two curtilages, including boundary treatments, along with the provision of turning and parking areas.
The new dwelling shall not be occupied unless the site has been so subdivided and laid out and shall be retained as such thereafter.
Reason: In the interests of highway safety and Biodiversity, and to ensure that two separate and individually adequate curtilages are provided in the interested of the amenity of future occupiers.
Reason: To provide adequate safeguards for the bats.
Reason: A reason why the application is considered acceptable is due to the overall environmental impacts as outlined on Housing Policy 14 and namely the eco efficiency credentials of the new dwelling.
(a) the exact location, species, nursery specification and planting specification of each tree (or group of trees) to be planted. Where groups or larger areas are to be planted state the area and planting density; (b) the approximate date when they are to be planted; and
(c) how they will be maintained until successfully established.
Reason: To ensure an appropriate standard of visual amenity in the local area and that the development is appropriately landscaped to sit comfortably and acceptably in its location.
Reason: To ensure an appropriate standard of visual amenity in the local area and that the development is appropriately landscaped to sit comfortably and acceptably in its location.
Reason: In the interests of highway safety. NOTE: This approval relates to the following: This decision has been made for the following reasons(s): The proposed development is considered to comply with Environment Policy 1 of the Isle of Man Strategic Plan 2016. Date of issue: 14th November 2022 By Order of the Minister
Redacted
Mr S Stanley Interim Chief Executive
Note 1: A copy of the report of the appointed person is appended hereto.
Note 2: All parties should note that there is no prescribed right of appeal relevant to the Minister’s decision herein and accordingly the only right of challenge is by a petition of doleance brought to the High Court of Justice of the Isle of Man. Such doleance proceedings required to be issued promptly and in any event within 3 months.
Note 3: The letter which accompanies this notice forms part of the notice in accordance with Article 13 (3) of the Town & Country Planning (Development Procedure) Order 2019.
| DRAWING NUMBER/DOCUMENT TITLE |
|---|
| Site Plan – Drwg No: 21 1529 01 |
| Site Plan – Drwg No: 21 1529 02 |
| South -West Visibility Splay (but also labelled north-west) – Drwg No: 21 1529 03 |
| North-East Visibility Splay – Drwg No: 21 1529 04 |
| Location Plan – Drwg No: 21 1529 05 |
--- end of appendix ---

enhancement of the individual character of settlements with a high standard of design and landscaping and recognises that infill development can be acceptable but that the value of spaces between buildings should not be underestimated.
the surrounding area of incised slopes where the aim is to conserve and enhance the character, quality and distinctiveness of the area, with its scattered settlement pattern. Planning History
application. Together
with Claremont and Merrion Park, it forms part of a field running down to the road between Fuschia Cottage and the access track, until Claremont and then Merrion Park were approved respectively about 2005-2007. The Case for the Appellants The material points are: Appraisal
been recognised as a hamlet where development could be successfully accommodated and, upon that basis, much residential development has been approved. The aerial photograph submitted by the Planning Authority dates from 2006 and is incomplete with regard to later developments adjacent to the appeal site. The images provided by the Appellants are more up to date and should be preferred.
in the countryside. The Area Plan for the East (APE) totally ignores IMSP Section 8 in failing to identify any small settlements for the provision of appropriate new development. The appeal proposal falls into that category, being for a young local couple with local connections and is designed to marry in with existing development.
the access lane on the south west side of the site and the tree- and hedge-lined property boundaries. None would be harmed by the proposed development.
the countryside which would arise from the development, as recognised by former Ministers as key to the application of EP1-2 of the IMSP.
are available and therefore car journeys could be minimised, in line with StrP10.
third parties. The Appellants own the appeal site. Their relatives farm Ballashamrock and Southampton Farms and also own the field immediately behind the site.
located within a hamlet, surrounded by residential development on both sides of the highway.
proposed dwelling would be similar in size to the two neighbouring dwellings, Merrion Park and Claremont, to the east.
accommodated on the site. Substantial separating distances could be achieved between the dwelling and neighbouring properties to avoid any adverse impact on outlook, privacy or light.
would be eco-friendly, highly insulated and substantially airtight, to reduce energy consumption, being powered largely by solar energy from photovoltaic panels and an air source heat pump. An electric vehicle charging point would be provided in line with Government climate change objectives.
outside the canopies of existing boundary trees alongside the adjacent lane.
Authority, prior to a reserved matters application, to agree detailed proposals.
in the area.
treatment tank to accord with building regulations. Storm water would discharge to Aquacell soakaways a minimum of 5m from any building or boundary.
gate would be sealed up and replaced by a new access located at the centre of the site frontage in accordance with Government guidelines, with minimum sight lines of 2.4m by 90m. The latter are achievable in both directions, well in excess of Highway Authority guidelines. The access would be set back by at least 6m in a similar way to those of the neighbouring properties. Off-road parking and turning space and cycle storage would be provided as required. Pre-submission consultation with the Highway Authority has been favourable. The existing access has slightly restricted visibility due to the existence of an electricity pole so would be blocked up in favour of a new entrance with adequate vision splays over the 1.6m wide grass roadside verge.
development, with the Merrion Park site referred to as being located within an existing settlement which could not be classed as open countryside. The assessment commented that, given the surrounding development, the Merrion Park proposal did not represent the consolidation of ribbon development but an infill plot, leaving the present appeal site as one further such plot. The present appeal site has thus already been accepted as a potential building plot.
on land, not zoned for development.
the countryside and would not be harmful to the character or appearance of the landscape.
consideration should be given to this proposal, bearing in mind its location, previous development in the locality and the favourable officer comments made in connection the earlier Merrion Park approval.
lived, instead of having to rent a property in Douglas. They are seeking a long- term, sustainable, energy-efficient home, suitable for modern living in a familiar community. The plot is in their ownership and is the one remaining piece of land in the corner of the original field which already has two properties approved and completed within it. The adjoining farmland is owned and managed by relatives.
a circular bus route from Douglas.
middle of the north side of Ballaveare.
hedgerow shrubs and mature trees.
north west boundary matches the alignment of Merrion Park and Claremont to the east. The Appellants will happily accept any conditions with regard to the design of a future house on their site to match in with existing surrounding properties. Conclusions
Ballaveare may assist in meeting the needs of rural areas such as by maintaining social and family associations and assisting in sustaining the rural economy when sensitively related to the existing settlement pattern and the landscape and having particular regard to the value of existing spaces. In this light, the refusal of the present proposal is inequitable.
the modern planning policy and many have been subject to approvals not in strict accord with the IMSP.
Road. The site itself is surrounded by development. Roadside properties have strong boundary hedgerows with trees or Manx hedgebanks. The site is similarly well screened and the open field backdrop would remain. The proposal would therefore fit into the character and visual appearance of the locality.
there it appears as a garden associated with Merrion Park. There is no sense of it providing a break between recent houses to the north east and older development to the south west, which has itself been modernised. A further house would not spoil the setting of either. The proposal in itself does not constitute ribbon development and would merge naturally into the existing settlement.
surrounding area as open space. The development would not adversely block views of the countryside to the rear which comprise a vista of a rising grass field. The development would follow the settlement pattern and would set no precedent. Once additional screening vegetation has matured, visibility of the proposal would be minimised. The character and quality of the surrounding countryside and its landscape would not be harmed.
miles distant and the settlement is only some five miles from the airport, and both are within easy cycling distance. The fact that alternative forms of transport to the nearest employment centre are available means that the use of the car can be minimised and therefore that the proposal is in line with StrP10.
could be controlled at the reserved matters stage. The development would meet a local need and would not affect the amenity of neighbouring properties.
or the visual aspects of the landscape and so would not conflict with EP1 of the IMSP. Insufficient weight has been given to this.
Highway Authority or local residents.
Planning Conditions
replacement planting ignore the fact that no species of particular interest for retention have been identified in the site, given the appeal land currently remains in use for grazing.
to the east boundary of the adjacent access lane as they are outside of the appeal site and not in the control of the Appellants. Those trees and hedgerow could be practically be protected during any construction by fencing within the site at an appropriate distance from the boles of the trees. Additional planting could take place inside the site if required. The only loss of hedgerow or trees would be for the new 4m wide access, to be replaced by new hedgerow. There would be additional native planting adjacent to the access, shown on the submitted plans.
inappropriate in their current form, bearing in mind how little impact on the existing boundaries, trees and hedges would occur. The Case for the Planning Authority Issues
and highway safety.
Principle
protected part of the countryside where any development is strictly controlled.
adjoining two plots for Claremont and Merrion Park, to which the present site was previously attached as a single field, this field remains undesignated for development. The surrounding residential development also lies in protected countryside, as it does not have a defined a settlement boundary and is regarded as a cluster of dwellings outside any settlement.
contrary to StrP2 and SpP4 of the IMSP.
plot and claim exceptional circumstances in that they have farming connections to the locality and would like to build their family home in the community where one of them has always lived, instead of having to rent a property in Douglas.
of new residential development within existing towns and villages and provide that development in the countryside will only be permitted in certain exceptional circumstances, none of which apply in this case, notwithstanding the local agricultural connections of the Appellants.
of adjoining land for two open market dwellings, Merrion Park and Claremont, these permissions of 2005-7 pre-date the current provisions of the IMSP of 2016.
applications for development should be considered against the provisions of the current Development Plan unless material considerations indicate otherwise. In this case, it is considered that insufficient personal circumstances have been put forward to outweigh adopted policies
Visual Amenity
character of the site and surrounding area which, in this case, is characterised mainly by two-storey, detached and semi-detached dwellings. Neighbouring dwellings are within spacious plots with mature landscape screening, albeit Merrion Park and Claremont are both relatively new.
lesser extent, from the adjoining track just to the south west. Any new dwelling and garage would be most obvious when viewed from directly opposite the site entrance.
grass sward, mature roadside hedging and the tree-lined south west boundary and it represents an important visual break in development in this relatively loose-knit cluster of dwellings in the countryside.
unacceptably alter the character and appearance of this part of Old Castletown Road and result in the loss of this important soft, green visual gap between older and more recent development. This gap adds to the semi-rural character of the site and its surroundings.
contrary to the provisions of EP1 of the IMSP, which seeks to protect the countryside for its own sake, in the absence of evidence regarding any overriding national need in land use planning terms or the lack of any reasonable and acceptable alternative.
dwelling and garage on the character of the site, adjoining dwellings, and overall surroundings would fail to accord with the provisions of GP2(b) and (c) of the IMSP.
Highway Safety
and subject to a 30mph speed limit. The development could provide visibility splays of 2.4m by 90m, exceeding Highway Authority requirements of 2.4m x 43m. On-site turning areas and parking provision, along with cycle parking and electric vehicle charging, could be accommodated on the site. Accordingly, there is no objection on highway grounds and the proposal complies with GP2 of the IMSP all technical requirements in this regard, subject to standard conditions.
Planning Conditions
There is an extensive area of montbretia in the road verge that would require to be removed to facilitate the construction of the new access. Montbretia is a Wildlife Act 1990 Schedule 8 invasive non-native plant species. A montbretia avoidance and eradication plan has been submitted and, in the event that planning approval is granted, the works should be required to comply with this plan in order to comply with EP4-5 of the IMSP.
and Aquacell storm water soakaways. The DEFA Environmental Protection Officer has raised no objection in principle to these proposed arrangements, subject to further information being submitted to meet future drainage license
requirements, if approval were granted. Such mitigation details would meet the provisions of GP2l, EP7 and EP22 of the IMSP.
details for the access, permanent closure of the existing gate and advance provision of on-site parking and cycle storage, in the interests of highway safety and sustainability. A further condition should require a tree protection plan in order to maintain a good level of tree cover. Conclusions
accepted because the site lies within a rural and protected part of the countryside where any development is strictly controlled and the site is not allocated for any development.
to be of such significance as to warrant a departure from adopted planning policy.
would unacceptably alter the character and appearance of the area and result in the loss of this important soft, green visual gap between older and more recent development. In this regard it is considered that the proposed development would be visually harmful to the rural character and appearance of the site and surroundings, contrary to the provisions of the IMSP.
Other Representations
vision splays are acceptable for the prevailing 40mph speed limit on the A25 and subject to a condition that details of parking and internal layout be submitted for advance approval The DEFA Environmental Protection Officer comments that the discharge method for sewage be detailed and appropriate discharge licence obtained.
area of protected montbretia evident in the road verge that is to be removed to form the new proposed access and that working methods could enable the spread of this invasive plant into the wild, contrary to the Wildlife Act 1990 and a condition should require that no works take place unless a montbretia avoidance and eradication plan and native replacement planting has been submitted and approved. Assessment by the Inspector Planning Issues
countryside of an AHLV. Therefore, there is no dispute that the appeal proposal conflicts with the overarching policies of the IMSP regarding the location of new built development.
i. the effect the proposed development would have on the appearance and character of the site and its surroundings within the hamlet of Ballaveare and the wider landscape of the AHLV; and
ii. whether there are any particular local or personal circumstances in favour of the proposal, having regard to planning policy provisions relating to development within small rural settlements.
Appearance and Character
Park, the appeal site is left as a road frontage infill plot within the established hamlet of Ballaveare.
generally consistent style, given later modifications to the older properties. I see no reason why the proposed dwelling and garage should not fit harmoniously into this frontage.
reaches down to Old Castletown Road and, together with the adjacent access lane, forms a green gap between two groups of houses. However, I do not recognise the site as a green space of any particular value in this case.
continue to be seen against the rural backdrop provided by the open farmland rising to the north west. Otherwise, the site and the proposed development would continue to be partly screened by its existing boundary vegetation which could be enhanced by further landscape planting secured by planning condition, thereby softening its visual impression when viewed from the road.
or character of the hamlet or the surrounding landscape of the AHLV, as protected by StrP3 and EP1-2 of the IMSP. Nor in my view would it disrupt the individual character, quality or distinctiveness of the hamlet of Ballaveare in terms of StrP4 and paragraph 7.34.1 of the IMSP, as well as the Landscape Character Assessment. Local Circumstances
countryside, which do not have the characteristics of a settlement, may still have a sense of place and community. In such locations, sensitively adding a new dwelling to the group can help meet rural needs, maintain social and family associations and support the local economy.
Ballaveare is just such a rural group of dwellings. A sensitively added dwelling on the appeal site would consolidate the hamlet without significant expansion into the open countryside and provide a home for a local family strongly connected with the farming economy.
urban centre of Douglas and to the airport with a bus service available. In this respect, the development would be in line with StrP10 of the IMSP.
favour of the appeal proposal.
Planning Conditions
conditions to secure the parking and turning space and vison splays, as proposed in the interest of highway safety. Further conditions should secure the safe removal of noxious weeds from the site frontage as well as appropriate foul and surface water drainage facilities, as proposed by the Appellants.
despite some
boundary trees being strictly outside the site, and none being present within the main part of the land, which has been in long-term agricultural grazing. For this latter reason, I do not consider that a condition to protect ecology is necessary, in the absence of evidence of the presence of species of concern.
Conclusion
development would cause no harm to the locality. Given that, under Manx law, the development plan policies carry no legal primacy, that lack of harm could be judged sufficient alone to justify approval, in my view.
circumstances of substantive weight.
application should be overturned and the approval sought granted, subject the conditions outlined above.
Recommendation
granted in principle for the erection of a dwelling and garage on land adjacent to Merrion Park, Old Castletown Road, Port Soderick, Isle of Man, IM4 1BB, in accordance with Drawings Nos HLK/22/178-2 and 3, dated February 2023, and for the reason for approval and subject to the conditions set out in the Appendix to this Report.
decision of the Planning Authority to refuse the application.
B J Sims Brian J Sims BSc (Hons) CEng MICE MRTPI Independent Inspector 2 November 2023
APPENDIX Reason for Approval and Recommended Planning Conditions Reason for Approval Whilst strictly contrary to strategic planning policy for the location of new dwellings, in particular General Policy 3 of the Isle of Man Strategic Plan 2016 (IMSP), the proposed development would cause no harm to the appearance or character of the locality and particular local and personal circumstances weigh in favour of the proposal in this case, resulting with compliance with Strategic Polices 3 and 4, Environment Policies 1 and 2, paragraph 7.34.1 and Section 8 of the IMSP. Planning Conditions
of four years from the date of this approval or before the expiration of two years from the date of approval of the last of the reserved matters. Reason: To comply with Article 26 of the Town and Country Planning (Development Procedure) Order 2019.
Department before the expiration of two years from the date of this approval and thereafter the development shall only be carried out in accordance with the details as approved. Reason: To avoid the accumulation of unimplemented planning approvals.
external appearance (hereinafter called "the reserved matters") shall be obtained from the Department in writing before any development is commenced. Reason: To comply with the Town and Country Planning (Development Procedure) Order 2019.
accordance with the recommendations with British Standard 5837:2012 (Trees in relation to design, demolition and construction). This plan shall provide details of existing trees to be retained, the trees to be removed to facilitate the creation of the site access, and the management approach for the trees on the site. Any retained tree which within five years of the approved development being occupied or completed (whichever is the later) dies, are removed or become seriously damaged or diseased shall be replaced by a similar species, of a size to be first approved in writing by the Department, during the next planting season or in accordance with a programme of replacement to be agreed in writing with the Department. Reason: To safeguard the appearance of the development and the surrounding area, and to ensure that replacement tree planting takes place to mitigate the tree removal required to facilitate the development.
writing by the Planning Authority within the "the reserved matters" application: site access, internal pedestrian and vehicle areas, car and bicycle parking, waste bin storage and arrangements for collection. The details hereby approved shall be carried out in accordance with that approval. Reason: In interests of highway and road user safety.
6
The dwelling hereby approved shall not be first occupied until the submitted montbretia eradication and avoidance plan, for the area of montbretia in that part of the road verge to be removed to form the site access, has been implemented and measures taken to prevent the spread of this invasive plant into the wild, contrary to the Wildlife Act 1990 and to replace it with native replacement planting. Reason: To ensure compliance with the Wildlife Act 1990 and Environment Policies 4 and 5 of the Isle of Man Strategic Plan 2016 in the interests of biodiversity.
hereby approved, shall be submitted to and approved in writing by DEFA Planning. Such approved drainage scheme shall be installed prior to the development hereby permitted being first occupied and shall thereafter be retained and maintained at all times. Reason: To ensure that the site is adequately drained and does not increase the risk of flooding elsewhere. --- end of appendix ---
C Minister’s Decision
Oliver And Eleanor Blaker And Kelly 41 Farmhill Meadows Douglas IM2 2LL
Telephone (01624) 685958 Email: [email protected] Contact: Mr S Gallacher Our Ref: NEC /AP23/0036 Date: 20th December 2023
Dear Sir/Madam,
PA No: 23/00267/A Address: Land West Of Merrion Park Old Castletown Road Port Soderick IM4 1BB Proposal: Approval in principle to site dwelling and garage, discharging the siting and means of access
I refer to the appeal in respect of the above planning application.
In accordance with the provisions of The Town and Country Planning (Development Procedure) Order 2019, I herewith give notice of the appeal decision.
The Minister for Environment, Food and Agriculture, the Hon C Barber MHK, has considered the report, concurs with the appointed person's conclusions, and accepts the recommendation that the appeal should be allowed. Accordingly, she has directed that the Department's decision to refuse the application should be reversed, and that the application should be Approved subject to conditions. Formal notice of this decision is attached.
Yours faithfully, Redacted
Scott Gallacher Chief Officer
cc. Ms Patricia S Newton, 2 Glen View, South Cape, Laxey, IM4 7HY
The Town and Country Planning (Development Procedure) Order 2019
Oliver And Eleanor Blaker And Kelly 41 Farmhill Meadows Douglas IM2 2LL
In pursuance of his powers under the above Act and Order/Regulations, the Minister for the Department of the Environment, Food and Agriculture, the Hon C Barber MHK does hereby in the name of and on behalf of the Department APPROVE planning application 23/00267/A by Oliver And Eleanor Blaker And Kelly for Approval in principle to site dwelling and garage, discharging the siting and means of access - Land West Of Merrion Park Old Castletown Road Port Soderick Isle Of Man IM4 1BB subject to the following conditions:-
Reason: To comply with Article 26 of the Town and Country Planning (Development Procedure) Order 2019 and to avoid the accumulation of unimplemented planning approvals.
Reason: To avoid the accumulation of unimplemented planning approvals.
Reason: To comply with the Town and Country Planning (Development Procedure) Order 2019.
Department of Environment, Food & Agriculture Thie Slieau Whallian, Foxdale Road, St John's, Isle of Man, IM4 3AS Page 1 of 3
similar species, of a size to be first approved in writing by the Department, during the next planting season or in accordance with a programme of replacement to be agreed in writing with the Department.
Reason: To safeguard the appearance of the development and the surrounding area, and to ensure that replacement tree planting takes place to mitigate the tree removal required to facilitate the development.
Reason: In interests of highway and road user safety.
Reason: To ensure compliance with the Wildlife Act 1990 and Environment Policies 4 and 5 of the Isle of Man Strategic Plan 2016 in the interests of biodiversity.
Reason: To ensure that the site is adequately drained and does not increase the risk of flooding elsewhere.
NOTE: This approval is in accordance with Drawings Nos HLK/22/178-2 and 3, dated February 2023.
Reason for Approval:
Whilst strictly contrary to Strategic Planning Policy for the location of new dwellings, in particular General Policy 3 of the Isle of Man Strategic Plan 2016 (IMSP), the proposed development would cause no harm to the appearance or character of the locality and particular local and personal circumstances weigh in favour of the proposal in this case, resulting with compliance with Strategic Policies 3 and 4, Environment Policies 1 and 2, paragraph 7.34.1 and Section 8 of the IMSP.
INFORMATIVE NOTE: Please be aware that a ban on the installation of fossil fuel heating systems in any new building(s) and or extension(s), will come into force on 1st January 2025. You therefore are encouraged to ensure that your proposed development includes alternatives to fossil fuel heating systems if you believe that such works will not be completed by that date. To this end, if you propose an alternative, such an air source or ground source heat pump(s), or any other heating system that would require planning approval, the details of this should be addressed now. This may require you to resubmit your planning application to accommodate the alternative, permitted heating system proposed.
Date of issue 20th December 2023 By Order of the Minister Redacted
Scott Gallacher Chief Officer
Note 1: A copy of the report of the appointed person is appended hereto.
Note 2: All parties should note that there is no prescribed right of appeal relevant to the Minister’s decision herein and accordingly the only right of challenge is by a petition of doleance brought to the High Court of Justice of the Isle of Man. Such doleance proceedings required to be issued promptly and in any event within 3 months.
Note 3: The letter which accompanies this notice forms part of the notice in accordance with Article 13 (3) of the Town & Country Planning (Development Procedure) Order 2019.
Copyright in submitted documents remains with their authors. Request removal
View as Markdown