Loading document...
Department of Planning DEFA Murray House Mount Havelock Douglas Isle of Man IM1 2SF
22nd July 2025
Dear Sir / Madam,
Re: Detailed Planning Application to Amend a Pedestrian Footpath / Cycle Route approved by PA22/00675/B (Full approval for a residential development comprising up to 320 dwellings, a nursery and a neighbourhood centre with associated highway and pedestrian/cycle access and infrastructure, Land East Of Braddan Road & Peel Road).
BACKGROUND In January 2024 planning permission was granted to Hartford Homes under reference PA22/00675/B for a residential development of up to 320 dwellings together with associated community infrastructure on land East of Braddan Road & Peel Road. The permission included provision for an active travel link from the southern edge of the main development site through the grounds of Douglas Rugby Club and onwards to the Peel Road, just north of Quarter Bridge.
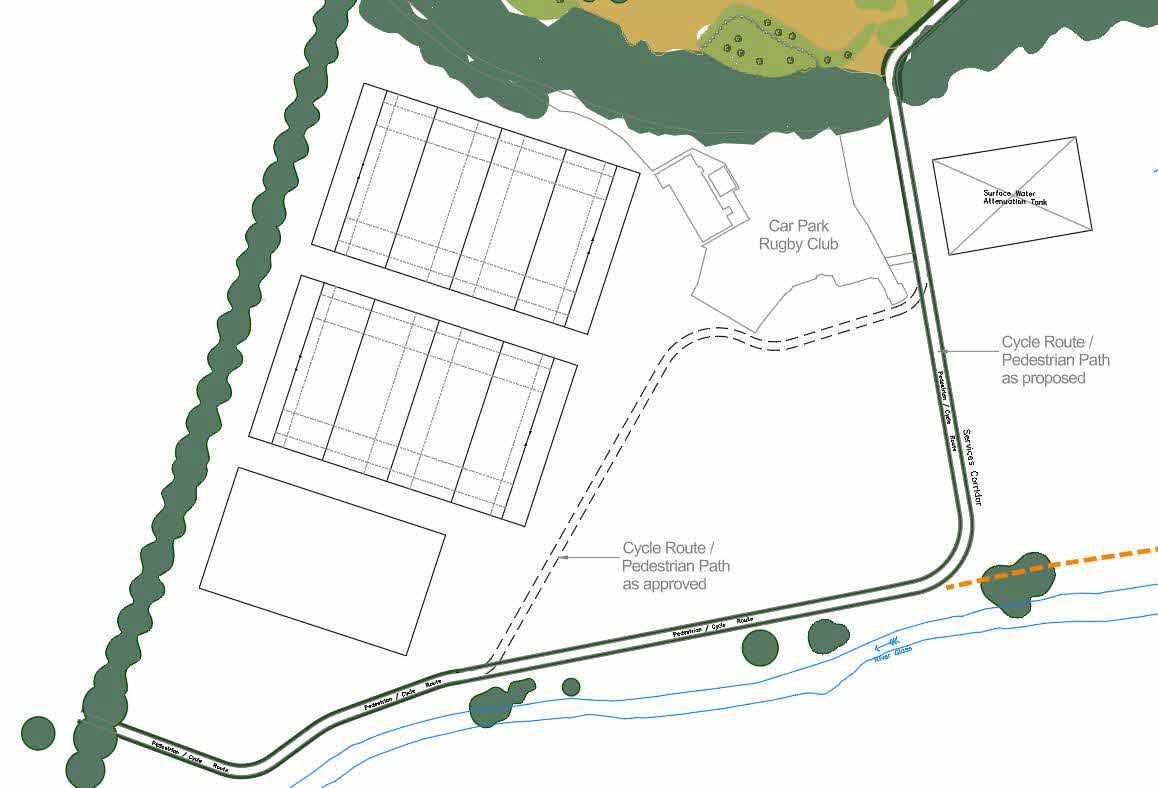
When Hartford Homes was developing the proposals for the residential development they consulted with the Club over the active travel route. At the time the Rugby Club had expressed a preference for the route to skirt around the existing car park and the pitches, and this was subsequently proposed and approved. The following is an extract from the approved drawing, showing the approved route.
Extract of the approved drawing showing the approved Cycle Route.
Subsequently, the club has reconsidered its requirements and have concluded that an alternative route should be pursued. This is party to accommodate increased levels of club activity but also to better accommodate the clubs sporting plans and management of TT visitors, both for camping and the parking of visitor’s vehicles.
During the annual TT festival, the club provides one of the premier camp sites for visitors, which includes camping pitches, visitor vehicle parking and use of the clubs facilities. A high percentage of TT visitors stay at Douglas Rugby Club due to its proximity to the town centre and grandstand, as well as being adjacent to Quarter Bridge, and the camp site is booked well in advance.
Page 2 of 5

Image showing typical extent of TT use.
Given the above, the club has approached Hartford Homes to reconsider the route, and an alternative route has been identified for the active travel link to take a more direct route towards the riverbank first, before turning towards Quarter Bridge, as per the image below. This will better meet the club’s operational requirements.
Page 3 of 5

Image showing amended route of Cycle way.
Hartford Homes hac considered the Club’s request and as the change of route does not impact on the proposed residential development, we are willing to accommodate this change. As we proposed to commence construction of the link in the near future, we are now seeking planning approval as soon as possible to not delay these works.
The application enclosed is therefore an application to provide an alternative active travel link. It comprises of an identical footway/cycleway to that approved, but on the new alignment.
Subject to planning approval being granted, we would be willing to revise the Section 13 Agreement associated with PA22/00675/B which relates to this matter.
In anticipation of this planning application, Hartford Homes has also spoken to Douglas Council, who confirmed that they are happy with the alternative route, as the Council are party to the S13 agreement and will maintain the landscaped elements of the route upon its completion.
Further benefits of the new route are that DOI may in the future create a further pedestrian /cycle link extension to the northeast, with the aim of connecting to Tromode Road, and the realignment proposed would reduce the work needed to be undertaken if that link were ever to happen.
Page 4 of 5

Finally, the proposed realignment takes the pedestrian/cycle link over the drainage infrastructure that is being installed which is better for servicing and access by MUA who will be adopting the new infrastructure.
The proposals adjust the approved pedestrian/cycle route slightly, to a more regular shape which allows the following benefits:
We trust the above and attached are self-explanatory, but please do not hesitate to contact the writer if you have any questions.
Yours sincerely
George Li For and on behalf of Hartford Homes
Copyright in submitted documents remains with their authors. Request removal
View as Markdown