Demolition of existing barn and erection of single storey replacement Garage/ Outbuilding, comprising of amendments to P.A. No- 25/90628/B, at Ballig, Glen Mona Loop Road, Cornaa, Maughold, IM7 1HG.
17 December 2025
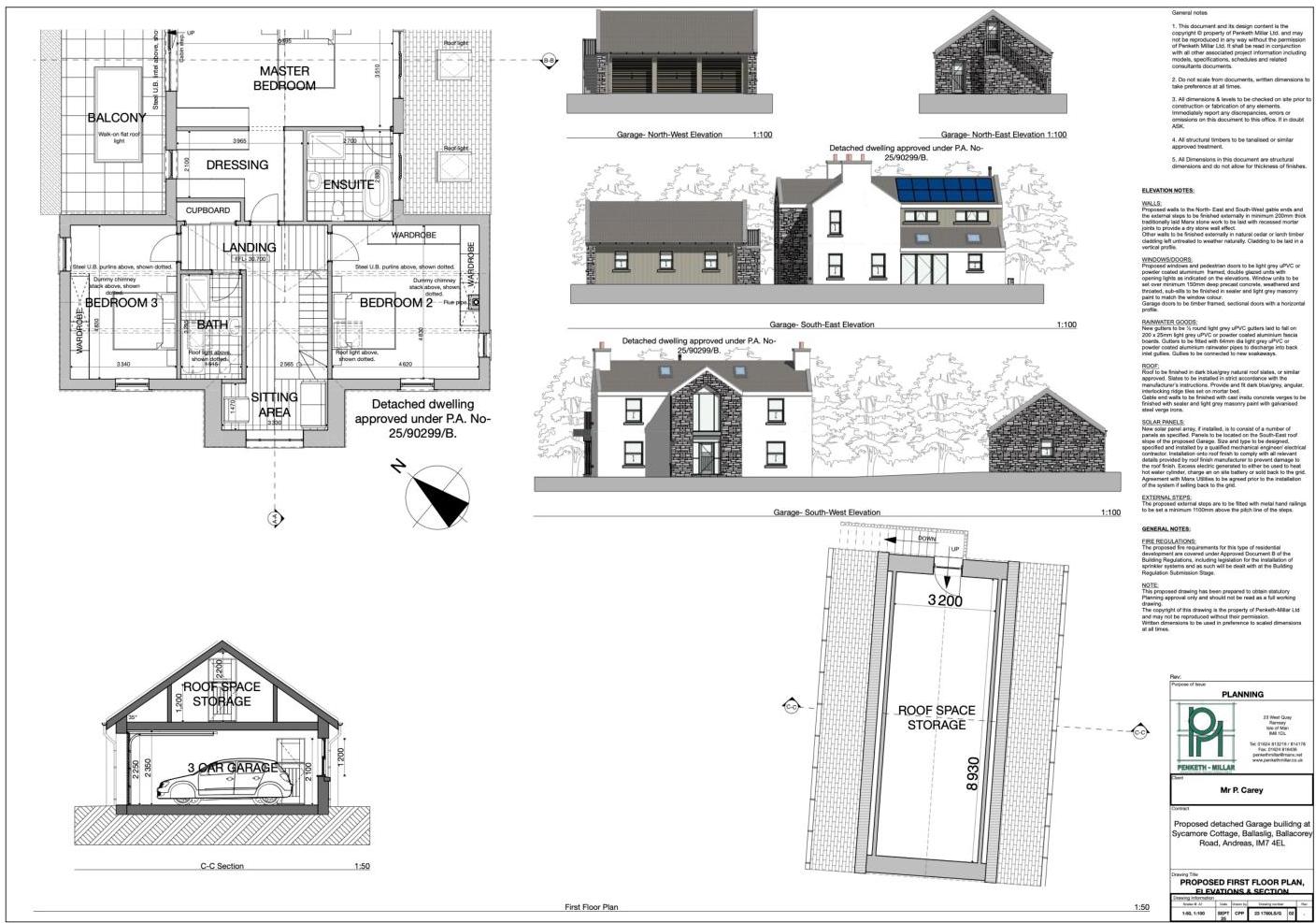
Penketh-Millar Ltd have recently been involved with obtaining planning permission for the erection of a proposed detached Garage building at Sycamore Cottage, Ballaslig, Ballacorey Road, Andreas, IM7 4EL. P.A. No 25/90894/B.
We attach below copies of the recently approved Planning Drawings;
APPROVED GROUND FLOOR PLAN
Architectural drawing sheet displaying floor plans, elevations, and a cross-section of a proposed detached building featuring a garage and upper floor rooms.Architectural 3D visualizations and elevation drawings of a proposed detached garage, featuring annotations for materials and solar panels.This image displays a site plan for a proposed detached garage at Sycamore Cottage, showing the layout of the property, existing buildings, trees, and access.
APPROVED, FIRST FLOOR PLAN, ELEVATIONS, SECTIONS.
APPROVED 3D IMAGES
APPROVED SITE PLAN
This application was recommended for Approval by the acting Planning Officer and went before the Planning Committee on Monday 15th December 2025 and was unanimously approved by all 6 members of the Planning Committee.
The proposals show a detached single storey 3 Car Garage with Roof Space Storage above that is accessible via a set of external steps.
The building has been designed in a traditional manner using traditional external materials such as natural stonework, natural timber cladding, natural roof slates. Similar to existing traditional outbuildings dotted throughout the Manx countryside.
The building is detached, but located in close proximity to the main associated dwelling that is to use the Garage building. All similar to the proposals put forward in this amended planning application at Ballig. The above application at Sycamore Cottage was approved with the following Condition of Approval attached;
C 6. The garage hereby approved may only be used as ancillary accommodation to the main dwelling house approved under planning approval 25/90299/B or any replacement of that approval. The internal layout of the garage hereby approved shall be in accordance with the approved details and retained as such thereafter. The garage may not be used independently, including for any commercial or tourist use. Reason: the garage has been approved on the basis that it would form an ancillary building within the curtilage of the dwelling house approved under 25/90299/B.
This condition of approval is similar t0 the Condition of Approval attached to P.A. No 25/90628/B, which this application is an amendment to. This Condition of Approval No 5 states the following;
The building hereby approved shall not be used or occupied at any time other than for purposes incidental to the residential use of the dwelling known as Ballig as identified on the approved plans and shall not be occupied as an independent unit or dwelling. Reason: To ensure proper control of the development and to avoid any future undesirable fragmentation of the curtilage.
We have confirmed in our Cover Letter dated 9th December 2025 that we and the applicant are more than happy for such a Condition of Approval being attached to this amended application should it prove successful.
With taking the above comments into consideration if the acting Planning Officer is minded to recommend this amended planning application for refusal we would please ask that the application is put before the Planning Committee, as was the case with P.A. No- 25/90894/B, which is of a similar type of development in the countryside.
Copyright in submitted documents remains with their authors. Request removal