Loading document...

8 January 2026
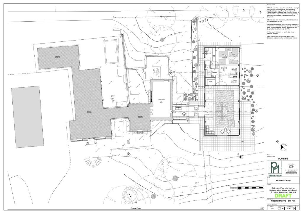
The proposed site is a property know as Ballagarraghyn Manor, located off the main Peel Road (A1), and is located approximately 615m South-East of Ballacraine Crossroads.
The site comprises of a large extended property with a detached Garage/Workshop outbuilding set in a residential curtilage of approximately 5488m², (1.3 acres).
A field located to the South-East of the residential curtilage adds a further 8765m² (2.2 acres), providing a total site area of approximately 14253m², (3.5acres).
All boundaries to the site have mature trees and hedgerow planting, which provides a semi rural setting.
A drive, located along the North-West boundary, provides the vehicle access off the main Peel Road up to the existing dwelling and garaging.
The proposals are to provide an attached Swimming Pool Hall extension located to the South-East of the existing dwelling.
The client would like to install a swimming pool that is 10m long x 5m wide, which when providing both wet and dry associated seating areas and circulation space around the proposed swimming pool creates a Pool Hall width of 10.000m.
To the rear of the propped Pool Hall is a small Sauna and Changing Room with shower and w.c. facilities to be used in association with the swimming pool.
A rear door off the Changing Room leads to a Plant Room, with external door access. The Plant Room would be required to accommodate all proposed plant equipment/units required for the running of the proposed swimming pool.
To make way for the proposed Swimming Pool extension the existing Study/Office outlet is to be demolished, this is shown dotted on the proposed Ground Floor Plan, drawing number 25 1921/06. The existing Gym, that is located in the rear extensions to the main dwelling, see drawing number 25 1921/13, is to be converted into the new Study/Home Office, to replace that which is to be demolished.
A new/replacement Gym would be located within the proposed extension, off the rear of the proposed Pool Hall. The proposed Gym is based upon the same floor area of the existing Gym and will accommodate all the existing fitness equipment currently house within the existing Gym. Drawing number 25 1921/10, indicates all the current fitness equipment that needs to be accommodated within the proposed Gym.
Finally a Machinery Store would be located to the rear of the Gym with direct access into the side field. This proposed Store would house all the equipment required for the up keep of the large garden areas to the proposed site, including sit on mower, chipper, mulcher and smaller items such a strimmers, wheel borrows, etc. Again drawing number 25 1921/10 indicates the existing larger items of equipment that would be housed within the proposed Machinery Store.
The existing garden machinery/equipment are currently housed within the existing detached Garage outlet, which leaves little space for the parking of motor vehicles. The provision of a dedicated Machinery Store within the proposed extension would then free the Garage outbuilding up for the parking of motor vehicles, which is what it was designed for.
The proposed accommodation is to be housed under one complete extension that has been designed in a thoughtful manner and with the correct use of external natural finishes will both compliment the existing dwelling and over time bed naturally into its semi rural setting. Drawing number 25 1921/08 shows the choice of natural external finishes that are proposed to be used on the extension.
Access to the existing rear Paved Courtyard would be provided off the main proposed Pool Hall, thus eliminating any need to further extend into the field located on the South-East side of the extension with paved/hard landscaping.

Pre-application advice was obtained prior to the submission of the proposed planning application, including an on site meeting with Jason Singleton on Tuesday 9th December 2025.
A series of draft drawings and discussions took place during this pre-application stage and we attach below a series of the draft proposals that formed part of the pre-application correspondence stage and assisted in the development of the final proposed submitted design.
INITIAL DRAFT FLOOR PLAN.
INITIAL DRAFT ELEVATIONS
INITIAL DRAFT SECTIONS & 3D IMAGES


INITIAL DRAFT ELEVATIONS WITH HIP ROOF DESIGN
INITIAL DRAFT ELEVATIONS WITH ALTERNATIVE GABLE END DESIGN


INITIAL DRAFT 3D IMAGES WITH HIP ROOF DESIGN
INITIAL DRAFT 3D IMAGES WITH ALTERNATIVE GABLE END DESIGN


This early pre-application advice stage was very important in the development of the proposed design stage and the on site meeting was very beneficial allowing the initial draft proposals to be seen within the contents of the proposed site and from public vantage points.
The early discussions resulted in the initial glazed link being omitted and the removal of the existing Study/Home Office outlet, which allows for the proposed Pool Hall extension to be located nearer to the existing dwelling and extending less into the field located to the South-East of the main dwelling.
The proposed application requires a slight increase to the existing residential curtilage. This is demonstrated in drawing number 25 1921/12. The current residential curtilage, (shaded blue), is approximately 5488m². The field located to the South-East of the proposed extension, (shaded green), equates to a total area of approximately 8765m². The extension to the residential curtilage, (shaded red), is 92m² which is approximately 1.1% of the whole field area and would result in a total new residential curtilage area for the extended site of 5580m².
A total of 3No existing trees are to be removed as part of the proposed works, these are shown hatched green on the Landscape Details drawing number 25 1921/11.
A total of 6No trees, (1:2 ratio), are proposed to be planted as part of the proposed works and again are indicated on drawing number 25 1921/11, together with low level planting located along the South-East edge of the proposed swimming pool extension.
Full landscape details are shown on drawing number 25 1921/11, together with the installation of 2No Bird and Bat boxes.
Copyright in submitted documents remains with their authors. Request removal
View as Markdown