Skip to content
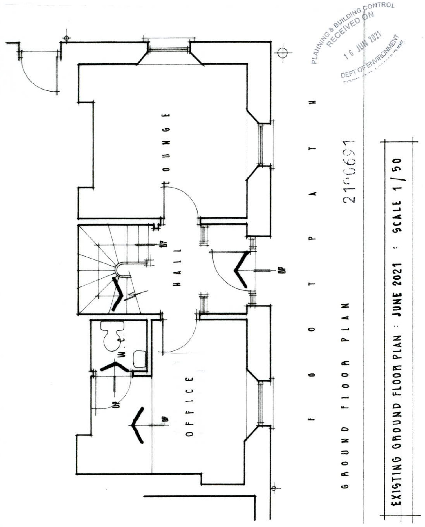
APL Planning Statement - 21/00691/C | Planning Portal IoM | Isle of Man Planning Portal