Loading document...

Castle Mona Hotel is number 82 on the register of protected buildings as well as being within the Douglas Promenades Conservation Area. These designations are official recognition of the high heritage significance of the building.
Historical value concerns the ways in which past people, events, and aspects of life can be connected through a place to the present—it tends to be illustrative or associative by nature.
The historic value of Castle Mona lies predominantly in its historic associations and its documented past. Completed in 1804, it was built as the private residence of the 4th Duke of Athol, the Governor General of the Isle of Man, 1793-1830, by his architect George Steuart as a more fitting residence. When the Duke left the island, the property was sold off and converted to a hotel in 1831.
The hotel was not particularly successful, and the building was sold. The estate was gradually sold off piecemeal for development in the late 1880s and the building changed ownership several times, being subsequently adapted and extended over time to increase its viability as a hotel. The Castle Mona Hotel closed in 2006. It was eventually sold at auction in 2018.
The historical value of the building is considered high.
Evidential value comprises the potential of a place to yield evidence about past human activity. This can be gleaned from archaeological, architectural, and intellectual or documentary evidence.
The residential value of the Castle Mona lies in its potential to provide further information on the building and its setting, which may enhance understanding and contribute to its heritage significance.
The Castle Mona has been altered quite considerably, and internally and has lost the physical evidence of its setting, although the building itself does still retain a number of original spaces and details.
In terms of archaeological potential, it is likely that an archaeological investigation would reveal little given that considerable works were undertaken by the Victorians, with the construction of the promenade shops in front of the seaside elevation, the Palace Hotel, Colliseum, and Ballroom to the north-east plus the construction of the boarding houses, now generally flats to the south, and the north-east bedroom wing extension, all within the original landscaped grounds.
The residential significance of the estate in terms of archaeological potential is therefore considered to be low.
A significant amount of documentary evidence survives, however, from some of Steaurus's original drawings; a set by local architect John Taggart prepared just twenty-two years after the building's completion for the purpose of conversion to a hotel (designed by Hansom & Welch); 1888 portfolio undertaken for selling off sections of the estate, which illustrate the building's original setting; plus various articles regarding the Arran Freestone cladding and numerous sales and purchases of the estate.
The Castle Mona itself also has the potential to tell us more about the former layout, construction, and decorative detailing through analysis of the surviving fabric in tandem with careful removal of modern false ceilings and linings.
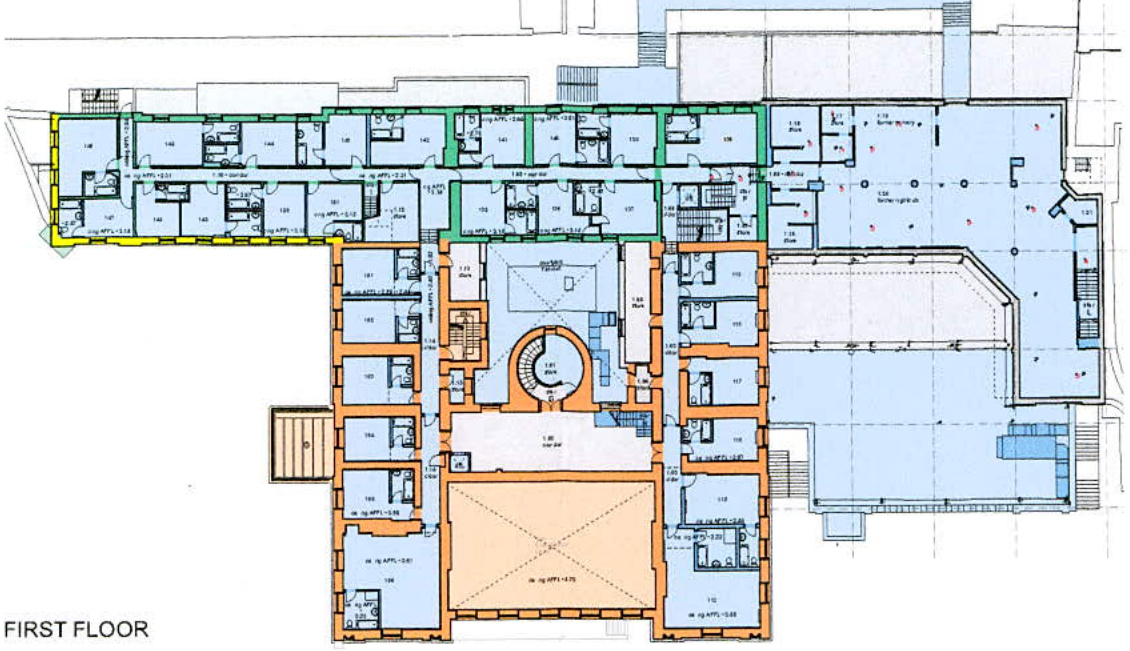
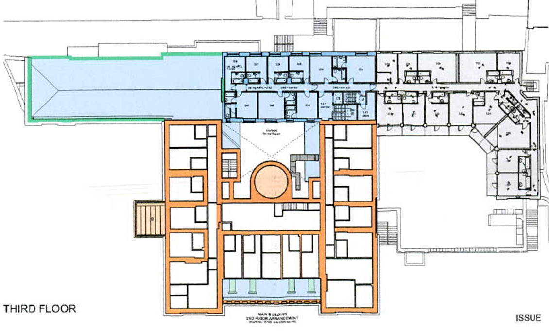
The historic development plans contained within "The Castle Mona Hotel," registered building no. 82, "Identification of development stages throughout the building" produced by the Planning Department, based on historic plans, has been utilized as basic source material and updated following further research. This starts to unravel the evolution of the building.
The residential significance of the building in terms of historic building archaeology is considered medium.



Communal value is, in essence, centred on the importance of a place to the people who use, experience and value it. Therefore, it is important to consider the public perception of use of the site and translate this into an understanding of communal value.
The communal value is considered to be moderate.
Originally, the Castle Mona and its estate was designed and operated as a single residence for the 4th Duke of Athol, supported by a workforce. However, within 30 years it had been converted to a hotel and was therefore opened up to public use. Over the course of its history the hotel evolved and was adapted to incorporate uses ranging from a casino, nightclub and eaterie to bowling alley.
Although remembered with fondness by many, the building is not the focal point. It once was and has struggled and declined over the years. It has operated for most of its life as a hotel providing public access and its continued usage, until 2006 when it closed, and social value give it a clear sense of identity, belonging and place retaining its historical relevance.
The aesthetic value of a building or landscape refers to the ways in which people draw sensory and intellectual stimulation from a place and its architectural quality.
A formal design by a known architect, Steuart, for a known patron, the 4th Duke of Athol, the original exterior form and materials that the building are constructed from are distinctive and of good quality.
The Arran Freestone, a white sandstone cladding to the walls generally, with Coada Stone medallions below carved stone swags on the seaside elevation, is particularly noteworthy.
A strong form with, originally, an essentially symmetrical square floor plan with a circular stair tower in a courtyard and projecting side wings at the rear. The principal rooms are on the front, seaside elevation, with the anterooms projecting forward either side of the saloon, or ballroom.
Elevationally, the building has a rusticated half basement plinth, with 3 storeys above. The low pitched roofs are hidden behind parapets which are castellated in parts. The circular stair tower rises above the rest of the building, giving it a distinctive silhouette. A recurring Steuart theme of slender, clustered columns appear externally and internally. Both the clustered columns and castellations appear after this elsewhere in Manx architecture, as noted by Patricia Tutt in her book, 'An Introduction to the Architecture of the Isle of Man'.
Internally, original late Georgian painted decoration survives in the double height ballroom space.
Despite subsequent incongruous extensions to the north east and various alterations to accommodate additional and new uses, there are no comparable buildings on the island.
There is the potential to improve the aesthetic quality of the house through considerate repair, conservation and removal of unsympathetic extensions and alterations and their careful replacement.
The aesthetic quality of the building is considered to be high.
There are a number of features that detract from the heritage value of the house. These features are considered to be intrusive and some offer the opportunity for considered enhancement.
These include:
Copyright in submitted documents remains with their authors. Request removal
View as Markdown