PLANNING STATEMENT FOR ALTERATIONS AND ADDITIONAL USES, THE NEW MARKET HALL RB 120, NORTH QUAY, DOUGLAS IM1 2BH
1.0 Introduction
1.1 The Market Hall or New Market Hall sits on the corners of North Quay, Market Street, James Street and a service lane which runs between the site and The British Hotel.
1.2 Opposite the site, across Market Street is The Old Market Hall which is the premises of The British Legion and accommodates bars and function facilities. Across James Street to the north is Spill the Beans, a small cafe: to the north west of the site are two terraces of public sector two storey houses and to the south is North Quay, a pedestrian and vehicular route with the marina to the south of that.
A street-level photograph of the Old Market Hall, a historic grey brick building with red brick arches and large windows, located next to a timber-framed structure.A photograph showing the exterior facade of a multi-story building featuring distinctive Tudor-style half-timbering on the upper levels and brickwork on the ground floor.A photograph showing the exterior corner of a historic building featuring red sandstone detailing, arched windows, and a modern glass entrance structure.A photograph showing the exterior brick facade of a building with large arched openings, one containing a black door and another a window.A street-level photograph showing the exterior of a brick building with a black metal fence and gate in the foreground. Several people are standing near the fence on the left side of the frame.
1.3 Most of the buildings here, including the application site, are of historical and architectural interest and are Registered and within a Conservation Area (see Planning Policy later).
1.4 Historically the site accommodated a butchers’ market. The nomination for Registration notes for both The Market Hall butchers’ market (New Market Hall) and the Market Hall Fish and Butter Market (Old Market Hall) dated 1989 the following:
“It is suggested that there are no other comparable buildings of this architectural type on the island and that there is an architectural quality of expression worth preserving. Although the present location is not in the main stream of tourist or commercial activity it is considered that over the longer term, north quay [sic] may once again assume a significant role in the “structure” of Douglas.”
1.5 The building is as such, historically and architecturally important and sensitive, as is its setting. Since Registration, this part of the city (Douglas was afforded City status in May 2022 as part of the late Queen’s Platinum Jubilee celebrations) has become popular as a place of leisure throughout the day and evening with myriad cafes, bars and restaurants together with significant public investment in the infrastructure - paving, increased pedestrian provision, street furniture and the creation of the marina. These investment works include private sector works to the New Market Hall to create a newer cafe (Noa) and cycle repair and sales shop with offices, storage and shower facilities in the basement. These works included the creation of a part mezzanine level within the building and the installation of ventilation equipment.
The image displays the interior of a bicycle shop with bicycles hanging from the ceiling and displayed on racks, featuring a high industrial-style ceiling with exposed ductwork and lighting.Interior photograph of a commercial space, likely a shop or cafe, featuring wooden shelving, a counter, and bicycles in the foreground.Interior photograph of a commercial space, likely a cycling shop, featuring wooden paneling with framed images and merchandise.The image shows an interior perspective looking up at a complex black metal truss framework suspended from a white ceiling with skylights. Display boards are visible at the bottom, suggesting a commercial or public interior space.Interior view looking up at a ceiling structure with exposed beams, ductwork, and scaffolding during renovation works.
2.0 Planning history
2.1 The building has had a series of planning applications for alterations and uses, all approved unless otherwise indicated:
A. 93/00459/B - installation of 60cm satellite dish
B. 01/00121/GB - Alterations to incorporate disabled toilets within existing toilets and installation of window to replace doorway
C. 01/01029/GB - Refurbishment of coping atop parapet walls
D. 02/02193/GB - Filling in of external lightwells with removable concrete covers
E. 03/01020/GB - Installation of architectural external lighting
F. 08/00934/GB - Installation of two notice cabinets (In association with 08/00935/CON)
G. 08/00935/CON - Registered Building consent to install two notice cabinets (In association with 08/00934/GB)
H. 08/01110/GB - Installation of replacement roller shutter doors (In association with 08/01111CON)
I. 08/01111/CON - Registered Building Consent for the installation of replacement roller shutter doors (In association with
08/01110GB)
J. 09/01066/GB - Installation of replacement windows (In association with 09/01068CON) K. 09/01068/CON - Registered Building Consent for the installation of replacement windows (RB no 120 in association with
09/01066GB)
L. 09/01122/CON - Registered Building consent for refurbishment works to existing toilet facilities
M. 10/01072/CON - Registered Building Consent for the replacement of lead work to roof and box gutters, removal of decorative lighting and associated equipment, re siting of power cables and repair works to lantern roof lights
N. 14/00830/GB - Conversion of premises for educational and public cultural events in addition to existing retail use (in association with 14/00831/CON)
O. 14/00831/CON - Registered Building consent for the conversion of premises for educational and public cultural events in addition to existing retail use (in association with 14/00830/GB)
P. 17/01081/GB - Door and window alterations, installation of flue and ventilation grills and external lighting (in association with 17/01082/CON)
Q. 17/01082/CON - Registered Building consent for door and window alterations, installation of flue and ventilation grills, lighting, basement and ground floor refurbishment works and installation of a mezzanine level (in association with 17/01081/GB)
R. 19/01286/GB - Alterations, installation of replacement roof slates to match existing and associated lead work to parapet, replace two roof lights and installation of four new roof lights, and replacement windows to ends of lantern roof structures with new sections of gutter above (in association with PA 19/01287/CON)
S. 19/01287/CON - Registered Building consent for alterations, installation of replacement roof slates to match existing and associated lead work to parapet, replace two roof lights and installation of four new roof lights, and replacement windows to ends of lantern roof structures with new sections of gutter above (in association with PA 19/01286/GB)
T. 20/00087/CON - Installation of granite commemorative plaque - application withdrawn
2.2 Applications for works close to the site
1. 99/00146/B - creation of marina facilities, inner harbour area
2. 05/01642/B - installation of floating pontoon berths to second phase of marina development
3. 06/00655/B - Highway improvement works from junction of Quine’s Corner to Parade Street Roundabout
4. 11/00923/B - Installation of six additional benches to match existing benches
5. 18/00889/B - Street paving and associated regeneration works
6. 22/00312/B - Replace existing grassed areas with resin and integrated lights and the installation of a timber framed bin store - pending consideration at the time of writing.
2.3 The previous applications, particularly those for Registered Building Consent (those with a CON suffix) contain a lot of interesting information including photographs of what previously existed, for example, the flooring and walls.
3.0 Planning Policy
3.1 The site lies within one of the many areas of Mixed Use on the Area Plan for the East. Those Mixed Use areas in the central part of the town have specific names and policies. The New Market Hall lies within the Quayside area on Proposals Map 5.
3.2 The Written Statement for the Area Plan refers in a number of places to the need for and value of continued regeneration of the Quayside area and provides the following advice and Proposal for this Mixed Use area: 9.10.10 Mixed Use Area 7 – The Quayside
The Quayside area has undergone regeneration on its northern side which has enhanced the area as a destination for people visiting restaurants and bars. On its southern side, industrial uses in older warehouse type buildings predominate. Redevelopment of the southern side to complement the quayside as a whole is to be encouraged. The Quays are also strategic freight corridors and maintaining access for commercial vehicles, including HGV’s, must be considered in any proposed development.
Due to the former industrial uses of South Quay, significant site preparation including decontamination may be required.
Town Centre – Mixed Use Proposal 7
There will be a presumption in favour of food and drink and other leisure-type uses on North Quay. There will be a presumption in favour of the comprehensive re-development of the southern side of the quay, including the potential re-positioning of the highway of South Quay between Old Castletown Road and Fort Anne Road, for new uses in the following categories:
• Tourism • Offices • Food and Drink • Leisure • Reception and function venues • Business hubs/share-service offices • Residential uses at first floor level and above.
3.3 The Area Plan also refers to the Retail Study of 2009 and states that “the majority of any new floorspace should be distributed primarily to town centre ore edge of centre locations in Douglas - for example, Strand Street and the existing shopping core and Douglas Quayside” and that “every available opportunity would be taken to open up existing and proposed linkages between the central core shopping area and Waterfront (Promenades and the Douglas Quayside) (Appendix Two of the Written Statement).
3.4 The site lies within the North Quay Conservation Area:
A colored site plan or location map showing property boundaries, local roads like 'The Town', and a body of water labeled 'Shingle' at the bottom.
Athol Street/Victoria Street Conservation Area shown in orange, North Quay Conservation Area shown in blue with Registered Buildings identified in pink
3.5 There is no Character Appraisal accompanying the map, unlike others in Douglas.
3.6 The Area Plan does not contain specific guidance on design: this is found in the Strategic Plan which provides overall and general planning policy for the Island which guides the Area Plans’ formulation. The policies and references which will apply to any application for alterations to this building are as follows: Continued investment in the Quayside (Spatial Vision)
Environment Policy 35 and Planning Policy Statement 1/01 - Conservation of the Historic Environment of the Isle of Man CA/ 2 which require development to preserve or enhance the character or appearance of the area and to take into account the special characteristics of the area.
General Policy 2 sets out general standards for development to follow, requiring that development does not affect adversely the character of the surrounding landscape or townscape and respects the site and surroundings in terms of the siting, layout, scale form, design and landscaping of buildings at the spaces around them.
Strategic Policy 4 requires development to protect or enhance the fabric of Conservation Areas and Registered Buildings.
Environment Policies 30, 31, 32 and 33 set out presumptions in respect of Registered Buildings - they should not be demolished and not removed from the Register and extensions or alterations which would affect detrimentally is character as a building of special architectural or historic interest will not be permitted. Planning Policy Statement 1/01 - Conservation of the Historic Environment of the Isle of Man confirms this in more detail (see Appendix Two). Changes of use (which do not require Registered Building consent) must not result in any detrimental change to the building (RB/3, RB/4, RB/5) and those with disabilities should be accommodated as sensitively as possible (RB/8).
3.7 The site is within an area shown on the national flood risk maps as being at high risk of tidal flooding (Environment Policies 10 and 13):
A hand-drawn site plan map highlighting a specific area in orange, showing surrounding streets and a coastal boundary at the bottom.A cropped section of a green site location map showing street names such as 'Chapel Row' and 'New Bond Street'.
3.8 There are no trees, Registered or otherwise, on the site.
3.9 Commercial development specifically and development generally is directed towards existing settlements with Douglas being the primary location for housing, services and employment (Spatial Policies 1 and 5m Business Policies 1, 7, 9 and 10). Development is required to be sustainable in location (Strategic Aim, Strategic Policies 1, 2 and 10) and construction (Residential Design Guidance Section 2 and the Climate Change Act (see Appendix Three) although not all parts have been brought into effect as yet.
4.0 Historical significance
4.1 Whilst the external fabric appears relatively unaltered, the internal layout, over time is more changed. Originally, the layout would have been very open but with stalls providing areas for different users but over the years internal compartmentalisation has changed and been removed and replaced the introduction of internal stud walling as can be seen in the various applications (see below) which have sought to find new uses for this important building.
4.2 The pamphlet “Municipal Buildings in the Isle of Man” dated August 31st, 1900 lists a small number of civic buildings including the town hall, both markets and the infectious diseases sanatorium. There are plans of the markets including the following:
4.3 The article discusses the markets in detail, explains that the new market hall was erected by the corporation and opened three weeks prior to the publication of the article. The site was provided through the demolition of the old British Hotel and a number of “low class properties in the course of the town improvement scheme” and a special Bill was promoted by the town council through the legislature which empowered them to provide a market building and charge remunerative fees in
This image displays a historical ground plan of the Butchers' Market in Douglas, Isle of Man. It illustrates the layout of butcher stalls, public passages, and a counters office.An architectural elevation drawing of the Butchers' Market in Douglas, Isle of Man, depicting a large building with arched openings and a central entrance.An architectural elevation drawing of the historic Douglas Market building, featuring two domed structures and arched windows.
lieu of the old free open air market which “it has been the privilege of butchers and others to make use of from time immemorial”. Whilst traders supported the proposed new facilities, there were others who were strongly opposed but nevertheless the buildings were constructed.
4.4 Despite being regarded as attractive and important nowadays, the building was described as being “of no particular style of architecture and from an artist’s point of view principles have been to some extent necessarily sacrificed in order to make a useful building on a limited area. The exterior, however, presents a very pleasing appearance”. It describes the stone balusters, cornice and coping and Glenfaba bricks used with Ruabon pressed bricks for the dressings, plinths and pilasters and the windows having moulded brick arches. It talks of the Glenfaba brick pilasters running up the walls between the windows completed with stone pediments which, together with the stone balusters round the top of the walls on all four sides of the building, form a “particularly decorative feature” of the structure.
4.5 The document refers to four entrances, each formed round with rusticated stonework and a massive pediment on the Market Street entrance bearing the arms of the borough carved in relief. It refers to the sandstone on the building being Whitehaven Bank’s End stone and each doorway having roller shutters “so as to economise floor space” and also swing doors with glass to “render the building as light as possible”. It identifies the floor as 12” concrete supported on steel girders 2ft apart, the inner face of the walls cemented and the roof lined with yellow pine boarding stained and varnished with the iron principals and girders in the roof and the ironwork throughout the building supplied by Messrs A. and J. Main of Glasgow.
4.6 The building has 55 stalls “of neat and handy construction, red deal [pine] being used for the sides and backs and sycamore for the tops of the counters” and a cash till in each stall with the caretaker’s office placed near the main entrance. It refers to 12 cellars which will be let separately as store rooms and also “elaborately fitted public conveniences”. It describes a “slanting rolling way into the basement from James-street for lowering heavy goods and also an entrance to the conveniences”. It explains that the basement floor is concrete and the walls of rubble stone work banked on the outer side with puddled clay to the ground level so as to keep water from percolating in. The building also had a valve chamber in the line of pipes to prevent back flooding in the drains due to high tides.
4.7 “The contractors’ tender for the building amounted to £4,352 15s and the making and fixing of the stalls £850. The whole work has been executed at a total cost of £5,410.”
4.8 The document also goes on to consider the fish, butter and vegetable market (now the Legion Hall) which was designed entirely of iron to provide a market which that could be kept “perfectly open in summer and closed in the winter”.
4.9 Since its construction, the building continued to be used as a market with a cafe (Harry’s) until the late 1990s/early 2000s when a series of applications sought to find new uses for and refurbishment of the building.
4.10 The roller shutter doors replaced under 08/01110/GB and 08/01111/CON are noted in the Conservation Officer’s report as “not historically significant” and their replacement was considered by the planning officer as an improvement.
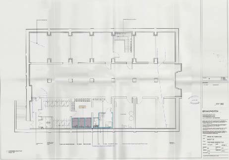
08/01111/CON ground floor layout
This image displays a black and white architectural floor plan for the Market Hall Level, showing room layouts, dimensions, and technical notes regarding roller shutters and sprinkler systems. It features the Borough of Douglas logo and a title block indicating it is a Planning and Building Contr...
Images from 08/01111/CON
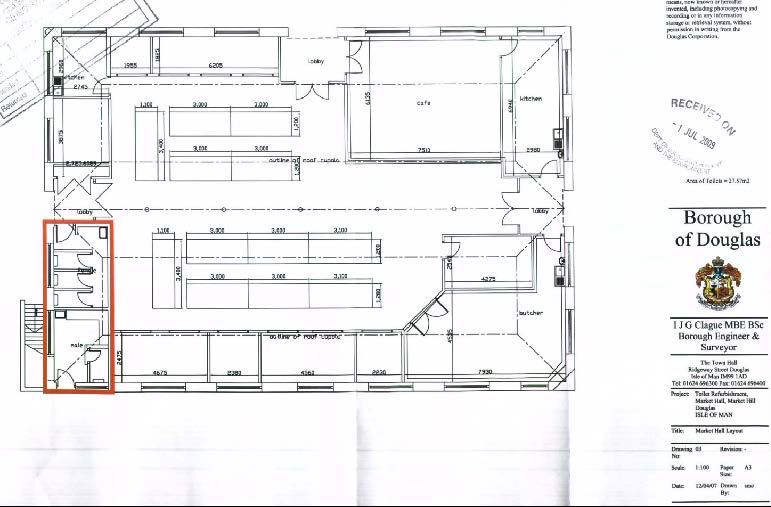
4.11 The 2009 application for toilet facilities replaced the existing toilets along the north western corner of the building:
09/01122/CON existing layout
A photograph showing the stone entrance to the Market Hall, labeled as Entrance No 1, featuring an arched doorway and pediment.A close-up photograph showing the channel and shutter mechanism of a roller shutter, with a label at the bottom identifying it as 'Roller Shutter No 1'.A photograph showing the entrance to a building labeled 'Market Hall Entrance No 2', featuring a green double door and a closed roller shutter above it.A photograph showing the stone entrance archway of a building labeled 'Market Hall Entrance No 3' with double doors and a pediment.Architectural floor plan of the Market Hall showing commercial spaces like a cafe and kitchen, with a red box highlighting a stairwell and toilet area.
09/01122/CON proposed layout
4.12 09/01122/CON photographs of the existing toilet facilities: the Conservation Officer noted at the time that “the toilets have already been altered in the past and anything that remains is not of any significant merit”.
4.13 14/00831/CON saw further internal alterations for the introduction of cultural and public and educational facilities (students associated with the Isle of Man College) but with retention of some of the retail units within the building, with the removal of non original fixed table stalls in the central space and a non original partition wall between the stall units with the replacement of a window pane on the western elevation of the building with a window extraction vent and new secondary double doors on the southern elevation (facing North Quay) and new fluorescent lighting installed in the existing remaining stalls.
14/00831/CON existing layout
An interior photograph showing two entrances to a ladies' toilet, one with a sign above the frame and another with a green door.The image displays two stacked photographs of an interior room, likely a bathroom or utility area, showing a wall-mounted sink with exposed plumbing and a toilet.A grainy photograph showing the interior of a tiled room, likely a public restroom, featuring a sink on the left and urinals on the right wall.A low-resolution interior photograph showing a corner with white square tiled walls, a wooden step or floor section, and a white door or paneling.This image displays a technical architectural floor plan detailing a service area layout, including disabled toilet facilities, a coin box, and access panels.This image displays an architectural floor plan for a building labeled 'Market Hill', showing interior room layouts and furniture arrangements.
14/00831/CON proposed layout
4.14 Photographs were submitted to accompany 14/00831/CON, including:
Architectural floor plan showing the layout of a commercial building with rooms labeled Butcher, Cafe, and Digital Suite.The image displays architectural elevation drawings comparing the existing west facade of a building with a proposed installation of an extract vent. It includes official stamps from the Department of Infrastructure Building Control and a title block indicating the scale and drawing number.
4.15 17/01082/CON saw perhaps the most significant changes proposed to the building including the lower level (basement) and the introduction of the mezzanine level which currently exists. The drawings submitted show the ground floor as open with no internal stalls:
4.16 The proposed ground floor would have new enclosed areas and rooms introduced which remain today with the majority of the remaining space left open (currently cafe and retail space).
Architectural floor plan showing a large open plan area with stairs and WCs. The drawing indicates the location is near America Street and North Quay.A document page displaying four existing condition photographs of a large interior space with high arched ceilings and timber supports.
4.17 The changes to the basement arrangement were thus: essentially the introduction of stairs from the ground floor on the eastern side of the building, removal of part of two internal partitions to create showers and bicycle storage and the installation of pumped would drainage system and removal of some of the existing drainage system between the two floors
4.18 The proposed mezzanine level introduced first floor space along the western and northern edges of the building:
This image displays a detailed architectural floor plan of a commercial or office space, showing furniture layouts, stairs, and room divisions.A black and white architectural floor plan showing room layouts, walls, and a staircase on the left side.A black and white architectural floor plan showing the layout of a building level, including rooms, stairs, and furniture arrangements.
4.19 External changes included the introduction of flues, extract ventilation in the western elevation alongside the public toilet access door, ventilation unit above within the roof, installation of new sandstone cill as repair, opening up of the existing doorway on the south western corner and installation of new timber double doors within as well as new timber door on the southern, northern and eastern entrances.
4.20 This application was the subject of criticism from a third party which resulted in additional information being provided from the applicant. Of particular interest are the comments relating to the floor where they state, “A detailed description of the building appears in The Surveyor and Municipal and County Engineer, August 1900, the year following the buildings [sic] completion, which notes that the original floor finish was concrete. The present modern quarry tiled floor is uneven and compromised by previous changes in internal layouts, drainage trenches, replacement tiles in the area of the public toilets, bedding from previous overlaid flooring and other damage. The retention of the tiles is not intrinsic to the value of the building and their proposed removal does not damage the important character of the building.” (E-mail dated 16th November, 2017 from Karen Horncastle).
4.21 The proposed mezzanine was carefully considered, the floor structure in line with the transoms of the windows alongside and supported on a steel frame, set inboard of piers which line the internal face of the external wall and thus not fixed to the external walls but set around 150mm from it with balustrades protecting the gap between. This was considered the least important and visible of the elevations and the most appropriate on which to introduce this element. The rest of the mezzanine along the James Street side of the building was built where the former toilet ceiling was supported by the walls but cut back around the windows.
4.22 Subsequent to this, one further application was approved for refurbishment works to roof lights, windows within the lantern lights, new sections of guttering and replacement roof slates (19/01287/CON).
4.23 The building retains its original function as a gathering place for people to trade and shop and internally the structure of the building remains largely as originally constructed albeit with new additions to create enclosed spaces around some of the periphery, the toilets have been replaced but are still within the building on the ground floor and with the new mezzanine level. The open structure of the building is still visible in terms of the ironwork, timber on the ceiling and the four means of access into the building. Recently, the south western door has been reinstated.
This image displays a technical architectural floor plan showing the ground floor layout with furniture arrangements and room divisions.
4.24 Early discussions with the Department (14th January and 14th June, 2022) revealed the interest in the internal space, and the importance of changes not resulting in the open character of the building being any more enclosed than it is. The building contains interesting structural elements and users are able to see the roof structure and it is important that this space is retained as existing where possible. The importance of this building in the overall revitalisation of the Quayside was emphasised and indeed appears to reflect the importance of the building when it was originally conceived, as part of a regeneration project for the town.
4.25 The approval granted for the conversion of the building to a shop and cafe saw a range of changes including a mezzanine level, new ventilation and extraction infrastructure and the tanking of the basement which is prone to tidal flooding. It was concluded at that time that the existing flooring - partly quarry tiles and part concrete, was not worthy of retention or protection so was replaced with new flooring. Care was also taken with the installation of the mezzanine level so that there was minimal interaction with the inside of the outer walls and so that the position of the floor was appropriate in respect of the window and how it may be viewed from outside as well as in. There was concern with the installation of new ventilation systems which were positioned on the least important elevation (facing the service lane between the building and the British Hotel) and the roof where it was least visible.
4.26 It was also stressed in terms of accessibility, heating, ventilation and extraction that the importance of the building is acknowledged at the outset by the engineers involved and appropriate measures employed.
5.0 The proposal
5.1 Proposed is the conversion of the premises from a cafe and shop with associated bicycle repair and servicing and cycle storage, showers and public conveniences to a cafe (Class 1.3), financial and professional services (Class 1.2) and public conveniences and including shop (Class 1.1), office that doesn’t involve visiting members of the public (Class 2.1) and other community uses (assembly of people, display of works of art (Class 4.3).
5.2 The intention is that the building will be used to provide financial advice to existing and prospective customers, in the way that a bank or building society would do within their premises, but in a more relaxed and informal environment. This work cafe concept, originating in Chile but now established in other parts of the world, is for customers and non-customers and brings together a bank, co-working area and a cafe experience together in a single place. The collaborative space is open and free for all - people may work, hold meetings, meet new people, attend events and have their financial arrangements managed.
5.3 The layout within the Market Hall will remain largely as it is currently, with the majority of the space open with half available as a cafe and the other half provided with a range of sizes of tables and desks to host meetings of various sizes. The enclosed areas will provide more private space and the public conveniences will be re-modelled. The area where the bicycles are currently serviced will be partly enclosed with new stud walling and the current staff rooms on the northern side of the building will be built out slightly with newly positioned doors. The current non-compliant wheelchair toilet at the northern entrance will be removed and two internal ATMs will be installed. Existing public conveniences will be re-modelled to provide three toilets (one of them a fully compliant DDA toilet). The reduction of one toilet provision at ground floor is compensated for with provision of two new customer toilets at mezzanine level. New handrails are to be installed on the staircase to the mezzanine and a new air curtain installed above the northern entrance affixed to the wall alongside with another above the eastern entrance.
5.4 Within the basement the cubicle layout is to be retained with the addition of new partitions with some of the modern partitions removed. The new partitions will be fixed to new fabric which was introduced when the tanking was added in the whole basis and where the fixing is only at the top and bottom ensuring there is no damage to the waterproof layers. There will continue to be toilets, shower and locker facilities - one of customers and showers and one toilet for staff, accommodation of equipment and new ramps introduced from the basement level to the external door at the base of the external steps to assist fire evacuation. A new fire door is to be installed at this lower entrance (replacing a non-original roller shutter door) and new condensers installed on the northern wall of the steps and two new openings to accommodate pipework, power and control cables for the adjacent new condensers.
5.5 The mezzanine balustrade will be replaced with timber surrounded mesh or glazing to provide more transparency at this upper level with meeting room two having a glazed wall into the building and the partitions between the easternmost areas removed.
5.0 Assessment of the proposal Proposed uses
5.1 The site is highly sustainable, is located in the Island’s capital which now has newly granted city status, where development including commercial development is encouraged, is highly accessible and where the building’s Registered status places even more importance on the building being used and maintained than may otherwise be the case. The Area Plan brings a new range of uses for city centre properties such as this, encouraging uses which bring investment, vitality and choice and encourage uses which extend the active use of buildings through the day and evening. The Area Plan makes it clear that city centre premises should include a variety of functions and add vitality and life to the area, specifically referring to “Business hubs/share-service offices”. Registered Building consent is not required for changes of use but is required for internal and external material changes: planning approval is not required for internal works but is required for any material change of use. In this case the approved uses are Class 1.1 (Shop) with associated repair facility and Class 1.3 (cafe). The proposed uses will expand this to add Classes 1.2, 2.1 and 4.3. The proposed uses have potential to extend the active periods of use of the building throughout the day as desired by the Area Plan. The proposal will therefore satisfy the Strategic Aim, Business Policies 1, 7, 9 and 20, Strategic Policy 10 and Spatial Policies 1, 5 and 6 as well as satisfying the vision and policies in the Area Plan for the East.
Class 1.2 – Financial and professional services Use, where the services are provided principally to visiting members of the public, for the purpose of providing —
(a) financial services (including the services of a bank, building society or insurance broker);
(b) professional services (including estate agency, dentist, opticians and legal or architectural services); or
(c) any other service which it is appropriate to provide in a shopping area, (including a booking office for a driving school or a job centre).
Class 2.1 – Office Use for the purpose of an office other than a purpose falling within Class 1.2.
Class 4.3 – Other community facilities Use for the purpose of —
(a) the assembly of persons for a social or community event, or for religious worship;
(b) the display of works of art (other than for sale or hire);
(c) a museum; or
(d) a library.
Heritage impact
5.2 As the site lies within a Conservation Area and the building is Registered, any development of the premises must demonstrate that the works will either preserve or enhance the character or appearance of the building and not adversely affect the character - inside and out - or context of the building as a Registered Building. The works should generally result in a neutral or positive visual change to the building and enable the building to sit comfortably in its surroundings which includes other Registered Buildings.
5.3 The historical evolution of this building has largely respected its function and form with the majority of the original internal layout and constructed remaining with only part of the upper floor now restricted from view from below. Many of the features noted on its construction are and will remain visible - the inner cement face of the walls and the roof lined with yellow pine boarding originally stained and varnished but now painted white with the iron principals and girders in the roof and the ironwork throughout the building.
5.4 The building remains open, high and impressive and will remain so following the proposed works where additional light and space will be introduced from the replacement of the balustrade and some of the partition walls in the upper section with glazing. There is very little in the way of alteration of
Interior photograph showing a high ceiling with white paneling and black steel support beams.Interior photograph looking up at exposed ceiling beams, ductwork, and wiring during renovation works.Interior photograph of a commercial space featuring wooden counters and shelving, with bicycles visible in the foreground.
original fabric: this confined to the introduction of two new openings for new pipework alongside this basement door and the introduction of two new flues on the elevation of the roof where there are already flues and which is the least visible and the removal of some non original partitions in the basement where the original walls will be revealed.
5.5 On balance, it is considered that the works have no adverse impact on the historical and architectural interest of the building and in some aspects there will be an enhancement (the additional glass and more open balustrades). The character of the building will be retained inside and out and it will have the potential for a new range of uses which will secure its continued maintenance and where the change of use of this Registered Building is appropriate and any alterations associated with the change are not detrimental to its character as a building of special architectural or historic interest, satisfying Strategic Policies3 and 4 and Environment Policies 33 and 35 and RB/4 of Planning Policy Statement 1/01 - Conservation of the Historic Environment of the Isle of Man.
5.6 The external alterations will not adversely or significantly affect the character or appearance of the Conservation Area as the condensers are within a stairwell which was and is a utilitarian passage and where they are not particularly visible or prominent. The proposed flues are on a roof plane that already has intrusions and where the new flues will not be particularly intrusive or prominent. We believe that Environment Policy 32 is satisfied as well as RB/3 and RB/5 of Planning Policy Statement 1/01 - Conservation of the Historic Environment of the Isle of Man. The continued provisions for people with disabilities, including enhancement of the toilet facilities satisfies RB/8. Car parking
5.7 Whilst there is no car parking available for the site, the site is highly accessible and the absence of parking is justified under all of the provisions in Appendix Seven:
(a) would secure the re-use of a Registered Building or a building of architectural or historic interest; or
(b) would result in the preservation of a sensitive streetscape; or
(c) is otherwise of benefit to the character of a Conservation Area.
(d) is within a reasonable distance of an existing or proposed bus route and it can be demonstrated a reduced level of parking will not result in unacceptable on street parking in the locality.
5.8 In any case, the proposed uses will not result in any significant change in traffic levels from the existing situation and Transport Policy 7 and Appendix Seven are satisfied. Flood risk
5.9 Whilst the site lies within an area at high risk of tidal flooding, the building already has a range of uses which are not materially changing as a result of the proposals. As such, a Flood Risk Assessment is not considered necessary and Environment Policies 10 and 13 are not contradicted.
5.10 The proposal would also satisfy all of the requirements of General Policy 2 of the Strategic Plan. Conclusion
5.11 We believe that these applications satisfy all of the relevant policies and proposals and will ensure the continued use and maintenance of an important building in a highly sustainable location within the Island’s capital city and principal settlement without any adverse impact to the special character and interest of the building itself or the context in which it sits and complementing the public investment in this part of the city which has been undertaken to date.
Sarah Corlett 13th September, 2022
Appendix One
Strategic Plan policies
Strategic Aim: To plan for the efficient and effective provision of services and infrastructure and to direct and control development and the use of land to meet the community’s needs, having particular regard to the principles of sustainability whilst at the same time preserving, protecting, and improving the quality of the environment, having particular regard to our uniquely Manx natural, wildlife, cultural and built heritage.
Strategic Policy 1: Development should make the best use of resources by: (a) optimising the use of previously developed land, redundant buildings, unused and under-used land and buildings, and reusing scarce indigenous building materials; (b) ensuring efficient use of sites, taking into account the needs for access, landscaping, open space(1) and amenity standards; and (c) being located so as to utilise existing and planned infrastructure, facilities and services.
Strategic Policy 2: New development will be located primarily within our existing towns and villages, or, where appropriate, in sustainable urban extensions(2) of these towns and villages. Development will be permitted in the countryside only in the exceptional circumstances identified in paragraph 6.3.
Strategic Policy 3: Proposals for development must ensure that the individual character of our towns and villages is protected or enhanced by:
(a) avoiding coalescence and maintaining adequate physical separation between settlements; and
(b) having regard in the design of new development to the use of local materials and character.
Strategic Policy 4: Proposals for development must:
(a) Protect or enhance the fabric and setting of Ancient Monuments, Registered Buildings(1), Conservation Areas(2) , buildings and structures within National Heritage Areas and sites of archaeological interest;
(b) protect or enhance the landscape quality and nature conservation value of urban as well as rural areas but especially in respect to development adjacent to Areas of Special Scientific Interest and other designations; and
(c) not cause or lead to unacceptable environmental pollution or disturbance.
Strategic Policy 10: New development should be located and designed such as to promote a more integrated transport network with the aim to: (a) minimise journeys, especially by private car; (b) make best use of public transport; (c) not adversely affect highway safety for all users, and (d) encourage pedestrian movement
Spatial Policy 1: The Douglas urban area will remain the main employment and services centre for the Island.
Spatial Policy 5: New development will be located within the defined settlements. Development will only be permitted in the countryside in accordance with General Policy 3.
Spatial Policy 6: The strategic roles of Ronaldsway Airport and Douglas Harbour as principal gateways to the Island will be protected and enhanced.
General Policy 2: Development which is in accordance with the land-use zoning and proposals in the appropriate Area Plan and with other policies of this Strategic Plan will normally be permitted, provided that the development:
(a) is in accordance with the design brief in the Area Plan where there is such a brief;
(b) respects the site and surroundings in terms of the siting, layout, scale, form, design and landscaping of buildings and the spaces around them;
(c) does not affect adversely the character of the surrounding landscape or townscape;
(d) does not adversely affect the protected wildlife or locally important habitats on the site or adjacent land, including water courses;
(e) does not affect adversely public views of the sea;
(f) incorporates where possible existing topography and landscape features, particularly trees and sod banks;
(g) does not affect adversely the amenity of local residents or the character of the locality;
(h) provides satisfactory amenity standards in itself, including where appropriate safe and convenient access for all highway users, together with adequate parking, servicing and manoeuvring space;
(i) does not have an unacceptable effect on road safety or traffic flows on the local highways;
(j) can be provided with all necessary services;
(k) does not prejudice the use or development of adjoining land in accordance with the appropriate Area Plan;
(l) is not on contaminated land or subject to unreasonable risk of erosion or flooding;
(m) takes account of community and personal safety and security in the design of buildings and the spaces around them; and
(n) is designed having due regard to best practice in reducing energy consumption.
Environment Policy 10: Where development is proposed on any site where in the opinion of the Department of Local Government and the Environment there is a potential risk of flooding, a flood risk assessment and details of proposed mitigation measures must accompany any application for planning permission. The requirements for a flood risk assessment are set out in Appendix 4.
Environment Policy 13: Development which would result in an unacceptable risk from flooding, either on or off-site, will not be permitted.
Environment Policy 30: There will be a general presumption against demolition of a Registered Building. In considering proposals for demolition or proposed works which would result in substantial demolition of a Registered Building, consideration will be given to:
• the condition of the building;
• the cost of repairing and maintaining it in relation to its importance and the value derived from its continued use (based on consistent long-term assumptions);
• the adequacy of efforts made to retain the building in use; and
• the merits of alternative proposals for the site.
Environment Policy 31: There will be a presumption against the removal of any Registered Building from the Register.
Environment Policy 32: Extensions or alterations to a Registered Building which would affect detrimentally its character as a building of special architectural or historic interest will not be permitted.
Environment Policy 33: The change of use of Registered Buildings will only be permitted if the proposed use is appropriate and any alterations associated with the change are not detrimental to its character as a building of special architectural or historic interest.
Environment Policy 34: In the maintenance, alteration or extension of pre-1920 buildings, the use of traditional materials will be preferred.
Environment Policy 35: Within Conservation Areas, the Department will permit only development which would preserve or enhance the character or appearance of the Area, and will ensure that the special features contributing to the character and quality are protected against inappropriate development.
Business Policy 1: The growth of employment opportunities throughout the Island will be encouraged provided that development proposals accord with the policies of this Plan.
Business Policy 7: New office floor space should be located within town and village centres on land which is zoned for the purpose on the appropriate area plan; exceptionally, permission may be given for new office space
(a) on approved Business Parks for Corporate Headquarters which do not involve day to day callers; or
(b) in buildings of acknowledged architectural or historic interest for which office use represents the only or most appropriate practicable and economic way of securing future use, renovation and maintenance.
Business Policy 9: The Department will support new retail provision in existing retail areas at a scale appropriate to the existing area and which will not have an adverse effect on adjacent retail areas. Major retail development proposals will require to be supported by a Retail Impact Assessment(1).
Business Policy 10: Retail development will be permitted only in established town and village centres, with the exceptions of neighbourhood shops in large residential areas and those instances identified in Business Policy 5.
Appendix Two
Planning Policy Statement 1/01 - Conservation of the Historic Environment of the Isle of Man
POLICY RB/3 General criteria applied in considering registered building applications The issues that are generally relevant to the consideration of all registered building applications are:-
• The importance of the building, its intrinsic architectural and historic interest and rarity, relative to the Island as a whole and within the local context;
• The particular physical features of the building (which may include its design, plan, materials or location) which justify its inclusion in the register; descriptions annexed to the entry in the register may draw attention to features of particular interest or value, but they are not exhaustive and other features of importance, (e.g. Interiors, murals, hidden fireplaces) may come to light after the building’s entry in the register;
• The building’s setting and its contribution to the local scene, which may be very important, e.g. Where it forms an element in a group, park, garden or other townscape or landscape, or where it shares particular architectural forms or details with other buildings nearby (including other registered buildings).
POLICY RB/4 USE In considering a proposal for change of use of a registered building, the principal aim should be to identify the optimum viable use that is compatible with the fabric, interior and setting of the building, all of which affect its special character as a building of merit. An applicant will have to illustrate that the effect of any proposed changes upon the architectural and historic interest of the building will be minimised.
POLICY RB/5 ALTERATIONS AND EXTENSIONS In considering whether to grant planning approval for development which affects a registered building or its setting and in considering whether to grant registered building consent for any works, the Department shall have special regard to the desirability of preserving the building or its setting or any features of special architectural or historic interest which it possesses.
Registered building consent is required for the building’s alteration in any way which would affect its special architectural or historic character. There will be a general presumption against alteration or extension of registered buildings, except where a convincing case can be made, against the criteria set out in this section, for such proposals.
Applicants for registered building consent for alteration or extension to a registered building must be able to justify their proposals. They will be required to show why the works which would affect the character of the registered building are desirable or necessary and they should provide full information to enable the Department to assess the likely impact of their proposals on the special architectural or historic interest of the building and on its setting. Where registered buildings are the subject of successive applications for alteration or extension, consideration will also be given to the cumulative affect upon the building’s special interest as a result of several minor works which may individually seem of little consequence.
POLICY RB/8 ACCESS FOR PERSONS WITH DISABILITIES It is important in principle that persons with disabilities should have as dignified and easy an access to historic buildings as is reasonably possible. If this consideration is treated as part of an integrated review of access requirements for all visitors or users, it should be possible to plan suitable access for such persons, without compromising a building’s special qualities. Alternative routes or re-organising the use of spaces may achieve the desired result, without the need for damaging alterations. Innovative solutions, such as de-mountable structures, may be possible, thus giving ready access to the building for all users, without disfiguring destruction of historic fabric.
BUILDING AND FIRE REGULATIONS In exercising the responsibility for the safety of buildings under the Building and Fire Regulations, when dealing with a proposal for the repair or conversion of a Registered Building, the appropriate authority should deal sympathetically with such a proposal. The Regulations should operate in such a way so as to avoid the mutilation or removal of features which contribute to the character of the Registered Building and if at all possible, alternative acceptable solutions should be sought. It is particularly important that there should be a flexible approach to structural matters, to ensure that any changes are in character with the rest of the building and that there is no avoidable damage to the fabric. In order to ensure that requirements which might be unacceptable in terms of an historic building, can be considered as part of a Registered Building Consent application, the precise Building and Fire Regulation requirements should be made explicit before an application has been determined. Application for consideration of the Fire Regulations should be made to the appropriate local Building Control authority and a successful outcome is more likely to be negotiated, if the relevant authorities have been consulted from the outset.
POLICY CA/2 SPECIAL PLANNING CONSIDERATIONS When considering proposals for the possible development of any land or buildings which fall within the conservation area, the impact of such proposals upon the special character of the area, will be a material consideration when assessing the application. Where a development is proposed for land which, although not within the boundaries of the conservation area, would affect its context or setting, or views into or out of the area; such issues should be given special consideration where the character or appearance of a conservation area may be affected.
Appendix Three - Climate Change Act 2021
6 Town and Country Planning Act 1999 amended In the Town and Country Planning Act 1999 —
(a) after section 2(2) (development plan) insert —
(2AA)The development plan must also take into account the following climate change policies established under the Climate Change Act 202- —
(a) the maximisation of carbon sequestration;
(b) the minimising of greenhouse gas emissions;
(c) the maintenance and restoration of ecosystems;
(d) biodiversity net gain;
(e) the need for sustainable drainage systems; and
(f) the provision of active travel infrastructure.
(b) after section 2A(1) (national policy directives) insert —
(1A) A national policy directive or a development plan must be issued before 1 January 2025 that takes into account the following climate change policies established under the Climate Change Act 202- —
(a) the maximisation of carbon sequestration;
(b) the minimising of greenhouse gas emissions;
(c) the maintenance and restoration of ecosystems;
(d) biodiversity net gain;
(e) the need for sustainable drainage systems; and
(f) the provision of active travel infrastructure;
(c) after section 6(3)(d) (meaning of “development”) insert —
(da) the removal or blocking of drainage in peatland (as defined in the Forestry Act 1984 and the restoration of peatland by the Department
7 Town and Country Planning (Development Procedure) Order 2019 amended After paragraph 2 of Schedule 1 to the Town and Country Planning (Development Procedure) Order 2019, insert —
2A All applications except those for approval for change of use, reserved matters, replacement windows and doors in conservation areas and minor changes
(1) This paragraph applies to applications for planning approval except those referred to in sub-paragraph (2).
(2) This paragraph does not apply to —
(a) an application for change of use only;
(b) an application for approval of reserved matters;
(c) an application to replace a window or a door of a building in a conservation area; and
(d) a minor changes application.
(3) Every application to which this paragraph applies must —
(a) demonstrate that the application has been made having regard to the following climate change policies established under the Climate Change Act 202- (i) the maximisation of carbon sequestration; (ii) the minimising of greenhouse gas emissions; (iii) the maintenance and restoration of ecosystems; (iv) biodiversity net gain; (v) the need for sustainable drainage systems; and (vi) the provision of active travel infrastructure; or
(b) explain why consideration of one or more of those polices is not practicable in relation to the proposed development.
Copyright in submitted documents remains with their authors. Request removal