Loading document...


Manx National Heritage • Applicant Horncastle Thomas Ltd • Agent
USE
This application seeks consent to make a number of modest additions to the Castle to improve access for all and to improve the visitor experience. Developing and enhancing the visitor experience, and making certain areas of the Castle more accessible, are important parts of the the Conservation Management Plans for this significant and internationally important ancient monument.
The proposal has been considered in three parts:
Two of the rooms accessed from the Keep house are Castle's main introductory exhibition and video presentation. Currently, access from the Keep to the ground floor Castle rooms is via a large threshold step. The new ramp would significantly improve access to these rooms for wheelchair users and for ambulant disabled visitors.
From the conservation viewpoint, all of the proposals are intended to be reversible with a minimal effect on the existing historic structure. Frange, where required, will only be into joints within the existing stone work and will not cause any damage to the stonework of the castle walls or floors.
AMOUNT
The amount of development is limited to the elements and areas described above; there is no new development per se, though it includes the reuse and enclosure of one existing covered area (the existing outer guest house). The enclosed floor area created is 21 ha.
LAYOUT
The main principles adopted for each of the design elements are that they should be as 'light touch' as possible, that as little disturbance should be made to the historic fabric as possible and that the installation of the proposed elements could be removed without trace, if so required. In order to bring a sense of unity to the current proposals, a common palate of materials is adopted; timber decking appears in each section, handrails will be in a circular-section hardwood, belustery in galvanised steel rods.

The Castle is well placed to take account of pedestrian access via nearby parking areas and transport links. These elements fall outside of the scope of the proposals; the purpose of the proposals is to improve access for mobility-impaired visitors within the Castle.
The general aim of the proposals is to improve access within the Castle for mobility-impaired visitors.
It is, first, proposed to remove the step, thereby creating a level access to the bridge at the entrance. There is a similar step at the Castle end but as this threshold forms a part of the historic fabric of the Castle, rather than a part of the bridge, it will not be possible to remove this. The consequence, which must be weighed against the benefit of removing the step and providing level access at the entrance end of the bridge, is a marginal increase in the gradient of the ramp, from 1:12 to 1:10.5. The length of the ramp would also be reduced marginally to 8.9m.
In relation to the historic context of the bridge, it is not considered possible to introduce any landings into the slope of the bridge and, whilst it is acknowledged that the gradient of the ramp could prove problematic for wheelchair users to navigate unaided, it is noted that, when open, the Castle is well staffed with attendants on site to assist wheelchair users if necessary. It is also acknowledged that the length and gradient of the ramp could prove difficult for ambulant disabled persons to use. Many National Heritage undertake to have a wheelchair available on site for the use of ambulant disabled persons, to be assisted by a member of the Mans National Heritage staff whenever required.
It is noted that the handrails for the bridge will be set at a height of 1m above the deck of the bridge, complying with part K of the building regulations. Large flank walls are adjacent to the bridge, generally average approx 500mm from the outside of the handrail, to a maximum of 560mm. The height of the flank walls above the deck reduces from approximately 1.5m at the entrance end to approximately 1.2m at the castle end.
Many National Heritage have noted that this bridge has been in use for c.100 years (with a lower handrail height of 800mm and a single, climbable, rail at mid height) without incident.
On the basis that it is vital that the form and appearance of the bridge does not harm the character of the Scheduled Ancient Monument, that a management plan can be implemented to reduce the impact of the length of the bridge on wheelchair or ambulant disabled visitors, the necessary relaxations required from the Building Regulations will be sought for this part of the scheme at the time of application for Building Regulations Approval for the proposals.
The ramp will comply with the requirements of part M, having a maximum length of 4.8m, its lower end being tapered to account for the slope in the keep's stone flag floor. The gradient is 1.15 (ie within the maximum length set out in part M for this gradient). The ramp has been designed to allow access to the three ground floor doorways that currently have a stepped access, all providing access to the Castle's primary exhibition spaces. The width of the ramp increases as it rises and the level area of decking then curves around the Castle's wall. Both sides of the ramp have a continuous handrail, extending 300mm beyond the start of the ramp, spaced at 1500mm at the bottom of the ramp, opening to 2.7m at the top. One of the handrails sits off the castle wall (75mm); this handrail does not continue 300mm beyond the top of the ramp as this could form a hazard to visitors passing the end of this wall. The curved section of handrail extends past the wall and down the two steps, finishing 300mm beyond the bottom step. There is a second handrail at the other side of the steps, also extending 300mm beyond the bottom step, this time returning at right angles towards the castle wall.
The level of the new deck, set to best serve the doorway threshold levels in the keep, does not, however, correspond to level of the bottom tread of the adjacent stone steps. The stone steps form the exit route from the bed of the upper floor rooms during the castle visit. The risers are uneven and range from 202mm to 216mm, with the bottom step currently being 244mm; there is a gate at the bottom which is to stop visitors going up the stairs and going the wrong way around the castle. There are two options available to accommodate this condition, which will be evaluated once the deck has been installed.
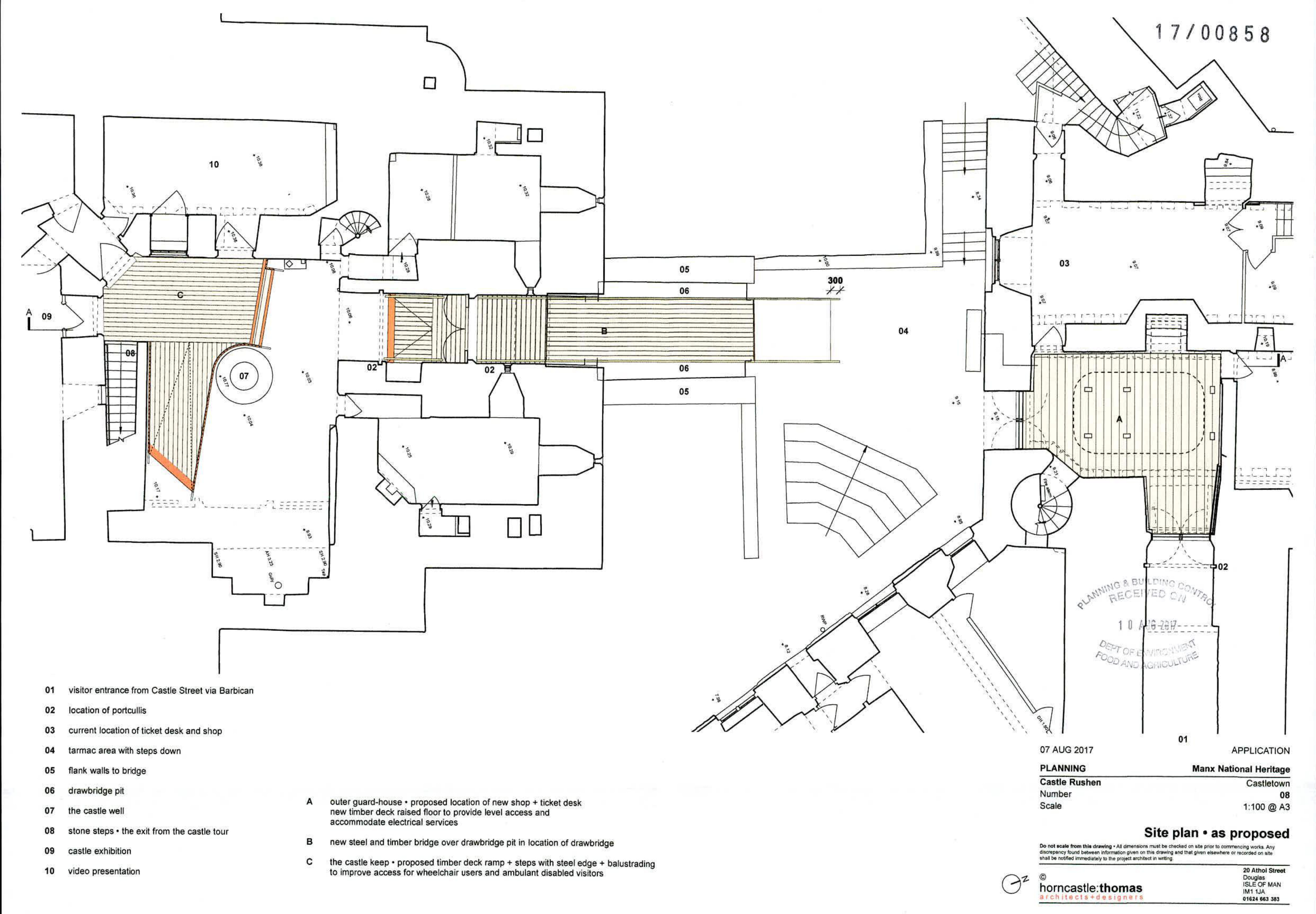
01 visitor entrance from Castle Street via Barbican 02 location of portcullis 03 current location of ticket desk and shop 04 tarmac area with steps down 05 flank walls to bridge 06 drawbridge pit 07 the castle well 08 stone steps $\cdot$ the exit from the castle tour 09 castle exhibition 10 video presentation
A outer guard-house $\cdot$ proposed location of new shop $\cdot$ ticket desk new timber deck raised floor to provide level access and accommodate electrical services B new steel and timber bridge over drawbridge pit in location of drawbridge C the castle keep $\cdot$ proposed timber deck ramp $\cdot$ steps with steel edge $\cdot$ balustrading to improve access for wheelchair users and ambulant disabled visitors

Copyright in submitted documents remains with their authors. Request removal
View as Markdown