Loading document...
www.hartford.im
Tel: +44 (0) 1624 631000
Fax: +44 (0) 1624 631001
Visit hartford.im
Department of Planning
DEFA
Murray House
Mount Havelock
Douglas
Isle of Man
IM1 2SF
25th September 2020.
Dear Sir / Madam, Re: Detailed planning application for a new dwelling on land next to No.17, Royal Park, Ramsey. The following information is provided in support of the above planning application:
Date: 2 of 17 Address: Hartford Homes Middle River Douglas Isle of Man British Isles 1 W2 1AL Directors: A.S. Greenhalgh J.S. Greenhalgh NA Greenhalgh Inc. in the Isle of Man No. 061 408C VAT No. GS 001 0743 45

This planning application is for the proposed development of a single, 3-bedroom dormer bungalow, on a vacant plot of land zoned for residential use, next to No.17, Royal Park, Ramsey.
This planning application has been developed on the basis that the Appeal Inspector for 18/01106/B, which was for a 2-bedroom bungalow, found that the proposed site is an 'undeveloped building plot' and the use of the land for a residential plot does not conflict with planning policy.
The proposed site The proposed site is located between No. 17 Royal Park and No. 12 Rheast Moore Avenue.
The northern boundary of the site measures 8.75 m in length. The site then widens moving towards the southern boundary, where it meets the road. The western boundary of the site is 40 m long and 29 m long on its eastern boundary. {{image:153638}}
Aerial view of the proposed site.
Street View of the proposed site.
The proposed site is part of a larger area of land that benefits from two extant planning approvals;
Planning Application: 04/02310/B - Approved
Address: Phase One, Fields 131161, 131047 & 134070, Ormly Fields With Access Via Vollan Crescent Ramsey Parish: RAMSEY Proposal: Proposed detailed house types for phase 1 of residential development comprising 46 plots
Planning Application: 04/02311/B - Approved
Address: Fields 131161, 131047,134070, 131049 & 131085, Ormly Fields And Access Via Vollan Crescent Ramsey Parish: RAMSEY Proposal: Proposed residential estate layout comprising of plots, roads and sewers for 111 mixed density dwellings with associated open space and landscaping
Page 4 of 17

Following the development of Royal Park Phase 1, which was covered by the above two planning approvals, planning approval was sought for a single, two storey dwelling on the current proposed site, similar in appearance to the house on No. 17 Royal Park, but this was refused in March 2009;
Planning Application: 08/02191/B - Refused Address: Plot 33A Royal Park Ramsey Isle of Man IM8 3UF Parish: RAMSEY Proposal: Erection of a dwelling A subsequent planning application was submitted in 2018, for a bungalow; Planning Application: 18/01106/B - Refused Address: Land to the west of 17 Royal Park, Royal Park, Ramsey, Isle of Man Proposal: Erection of a detached dwelling with associated parking.
This application was Refused by the Planning Department using Delegated Powers, and it was subsequently refused following an Appeal chaired by an Independent Planning Inspector. The Inspector reached the following 'Overall Conclusion';
70. Overall, despite a lack of objection on residential amenity and some benefits of a new dwelling making use of vacant land, I conclude that the substantive objection with respect to character and appearance is the overriding consideration, justifying dismissal of the appeal.
Reference will be made to the Inspector's report later in section 9 of this statement, together with an explanation of how the current proposals address the Inspector's concerns.
4. THE PROPOSED DEVELOPMENT
This current proposal is for a single, 3 bedroomed dormer bungalow, which has been designed to address the reasons for refusal of the previous planning application (PA18/01106/B), whilst maintaining all the elements that the planning Inspector found acceptable with the previous proposals.
The dormer house style will be similar to the property opposite, and it will use the same elevational detailing and construction materials as the rest of Royal Park Phase 1, to integrate it into the estate. Separation distances to the adjacent properties would comply with the standards set out in the Residential Design Guidance (July 2019) published by the planning department.
The site is separated from No. 12 Rheast Moore Avenue, by an existing hedge, which will be tidied up and retained, to maintain the screening separation between the two estates.
Proposed elevation

The principle planning policy documents relating to this application are;
The proposed site is on land zoned for residential development so complies with IOMSP General Policy 2.
The site isn't currently put to any particular use. The proposed development will make the best use of resources, in compliance with IOMSP Strategic Policy 1.
This proposal is for a single bungalow, therefore Housing Policy 5 is not applicable.
As this proposal is for a single dwelling, it is not proposed to provide any additional public open space.
There is a L.A.P. (Local Area of Play), at the end of the road, and large areas of Public Open Space are being provided as part of the development of Royal Park Phase 2, which is currently under construction. Moorage Park is also very close by.
Storm and Foul water disposal will be into the existing underground drainage system. Utility services are available next to the site.
The site fronts onto an adopted highway and two off road car park spaces will be provided, in compliance with standards set by Manx Manual for Roads. The car parking area has a minimum size of 7.5 m wide and 6 m deep.
The site is close to a bus route on Rheast Mooar Lane and is within easy walking and cycling distance of Ramsey Town Centre. There are also good footpath links to Mooragh Park and the Promenade, as well as to the three schools in Ramsey.
During discussions with Mr Andrew Igoea of DEFA for the previous planning application, PA18/01106/8, he suggested the inclusion of specimen trees in the front garden, would make a positive contribution to the streetscape. This current proposal includes the provision of the suggested trees.
The applicant also discussed the current proposals with Mr Chris Balmer in September 2020, who confirmed that the Inspector's comments regarding the status of the front of the site, was very helpful.
The following are extracts from the Appeal Inspector's Report for PA18/01106/8, shown in green, with our notes underneath;
i. the character and appearance of the site and surrounding part of the Royal Park estate, with respect to the loss of open space within the site and with regards to the wider street scene,
ii. the amenity of the three adjacent properties with respect to dominance, overshadowing, outlook and privacy, and iii. any effect on highway safety.
The Inspector accepted the proposed site is an 'undeveloped building plot' and the use of the land for a residential plot does not conflict with planning policy. The currently proposed site is the same as previously proposed and the layout of the site and the positioning of the proposed dwelling is similar to the previous application, on which the Inspector was commenting.
The Inspector accepted the proposed position of the previously proposed bungalow, and the separation distances between the proposed and existing building, was consistent with the layout of the estate as a whole.
The dormer bungalow, now proposed, is similarly positioned on the site to the previously proposed bungalow.
The Inspector's concern that the previously proposed bungalow was too wide for the site has been addressed by this current proposal, with the proposed dwelling being narrower, thereby leaving a greater separation to the boundary. The distance between the proposed dwelling and the side boundaries is as illustrated on the following plan. This relationship is common in residential development and allows for future maintenance of the property.

The following CGIs show the proposed dwelling in relation to its neighbours.
Note that there is little overlap between the proposed house and the side elevation of No. 12 Rheast Mooar Avenue;


This current proposal is for a dormer bungalow, which will be similar to the dormer bungalow located opposite the proposed site.
The existing dormer bungalow opposite the proposed site.
The height of the proposed house will provide a good transition from the full two storey No. 17 Royal Park, to No. 12 Rheast Mooar Avenue, which is a bungalow.

The proposed dormer bungalow will be narrower than the previously proposed bungalow, so will sit more comfortably on the plot. The materials and detailing of the proposed dwelling will match the rest of the houses in Royal Park.
Propose street elevation and section showing relationship with next door properties.
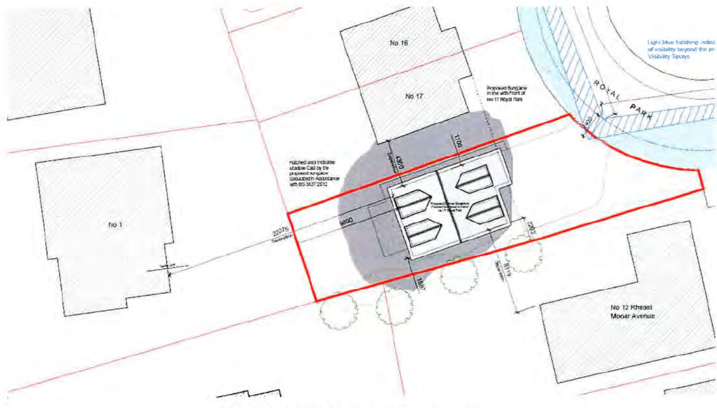
This current application also includes a shading diagram. There is no shadow cast over No. 12 Rheast Mooar as the proposed site is positioned north of No. 12. Also, the shadow cast onto the side of No. 17 Royal Park, is limited to the side of the house and most of its garden remains unaffected. It should be noted that the shadow cast illustration shows the total shadow cast throughout the day. In reality, only parts of the shadow will be cast at specific times during the day, following the path of the sun. On overcast days, there may not be any shadows cast at all.

Shadow cast illustration.
The following drawing shows the separation distances between the proposed and existing dwellings and also a site section showing the relationship between the proposed dwelling and No. 12 Rheast Mooar. The separation distances comply with the standards set out in the Residential Design Guidance (July 2019) published by the planning department.

The proposed dwelling will be set well back from the front of No 12 Rheast Mooar, with very little 'overlap' between the two buildings. This will mean that the side outlook for 12 Rheast Mooar, as well as its front and rear outlook, will be little impacted upon by the proposed dormer bungalow.
Furthermore, the ground floor level of 12 Rheast Mooar is approximatly 1.5 m higher than the ground level of the proposed dwelling and the existing hedge between the two properties will be retain, which will all help to maintain the prevacy of 12 Rheast Mooar.
Highway Safety

Highway matters remain unchanged from the previous planning application, so should remain acceptable.
We believe the inspector's concerns with respect to the 'character and appearance' of the previous proposal for a bungalow (PA18/01106/B) have been address by this current application. This proposal for a dormer bungalow, opposite an existing dormer bungalow, and constructed in the same materials as other properties in Royal Park Phase 1, will fit in well.
We believe these proposals are compliant with Planning Policy and the Ramsey Local Plan, and will provide an attractive infill home. The style and size of the dormer bungalow fits well into its location, and addresses the concerns raised by the Appeals Inspector for the previous proposals.
The Inspector accepted the proposed site is an 'undeveloped building plot' and he did '....not consider that the loss of the forward part of the appeal site as open space would, in itself, be objectionable, either in strict terms or with respect to the appearance of the site or immediate area'.
The proposed dwelling will make good use of available resources and will not have a negative impact on its neighbours.
We trust that we have provided sufficient information for this planning application to be determined, but should you have any questions, please do not hesitate to contact our offices.
Yours faithfully,
Redacted
For and on behalf of Hartford Homes Ltd.
Page 17 of 17
Copyright in submitted documents remains with their authors. Request removal
View as Markdown