Loading document...

Set within woodland, Raby House is located off the main road between Peei and Glen Maye on the northern outskirts of the village. Part of a group of buildings forming Raby Farm, the adjacent L-shaped barn and adjoining field are also within the ownership of the applicant.
A previous planning approval (19/01/2018 approved 23.12.19) included for refurbishing the existing dwelling, partial demolition of the more recent new additions and replacing them with a modern extension. This application re-examines the rear extension.
Raby House has been vacant and in a poor state of repair for some time. The refurbishment of the existing dwelling with an extension adopting the property to make it suitable to a modern lifestyle will ensure the property has a sustainable future.
Poor maintenance in the past has resulted in progressive decay. After repairs commenced on the existing dwelling the applicant decided to pursue a more modest and less intrusive extension to the house, whilst retaining more of the original structure.
Set back from and some 6 metres below the main road the principal elevation of Raby House faces the road, approximately orientated toward the east. The property consists of two main phases of development; the original farmhouse cottage plus its gentrification in the form of a 'poiler Victorian extension.
The Victorian part of the house faces the road and consists of two main storeys over a partial basement (the ground falls away to the sides of this section, towards the rear) with a central projecting gabled entrance bay and a rear projecting stair tower. The basement of the Victorian part connects through to the ground floor of the two storey, three bay filaire cottages. The rear connecting structure consists of a number of later ad-hoc additions. These additions are obscured from public views from the main road by, in part, the Victorian part of the house and its orientation, plus a belt of trees along the field boundary.
Construction is in painted rendered rubble stone with the Victorian part possessing a raised render band at first floor level and firmly incised earlier markings.
The roofs are pitched slide with the Victorian part having dominant gable chimney stacks and decorative barge boards to the front and north side. The cottage has a chimney stack on its west gable.
The Victorian part has well-proprioned timber sliding sash windows.
The Victorian extension fundamentally altered both the scale and orientation of the house: the main elevation of the original cottage is orientated approximately north, the Victorian part to the east.
The main principle adopted for the proposed rear south west extension, which largely replaces the later ad-hoc additions, is that it should respect the proportion, form and appearance of the existing dwelling, whilst not being a pastiche.
Scale and form have been carefully considered, addressing and balancing the change in scale that exists between both earlier phases of the dwelling through an easily readable modern layer that takes its use from existing vernacular forms, particularly the norfocape, and how the building relates to the site and landscape.
The principal element of the modest extension is a more pitch roof that comes off the rear of the cottage and is limited in height to the ridge of the cottage. This terminates in a gable wall and a new chimney stack reflecting an earlier one, but when the existing gable wall was rebuilt, the roof slopes down to single storey height, better referencing and connecting into a cat-slide roof from the cottage, perpetuating the original roof form.
Although separated from the Victorian extension, the new element is similar in pitch, as well as advising outlying two structures in the landscape and the natural slope of the land.
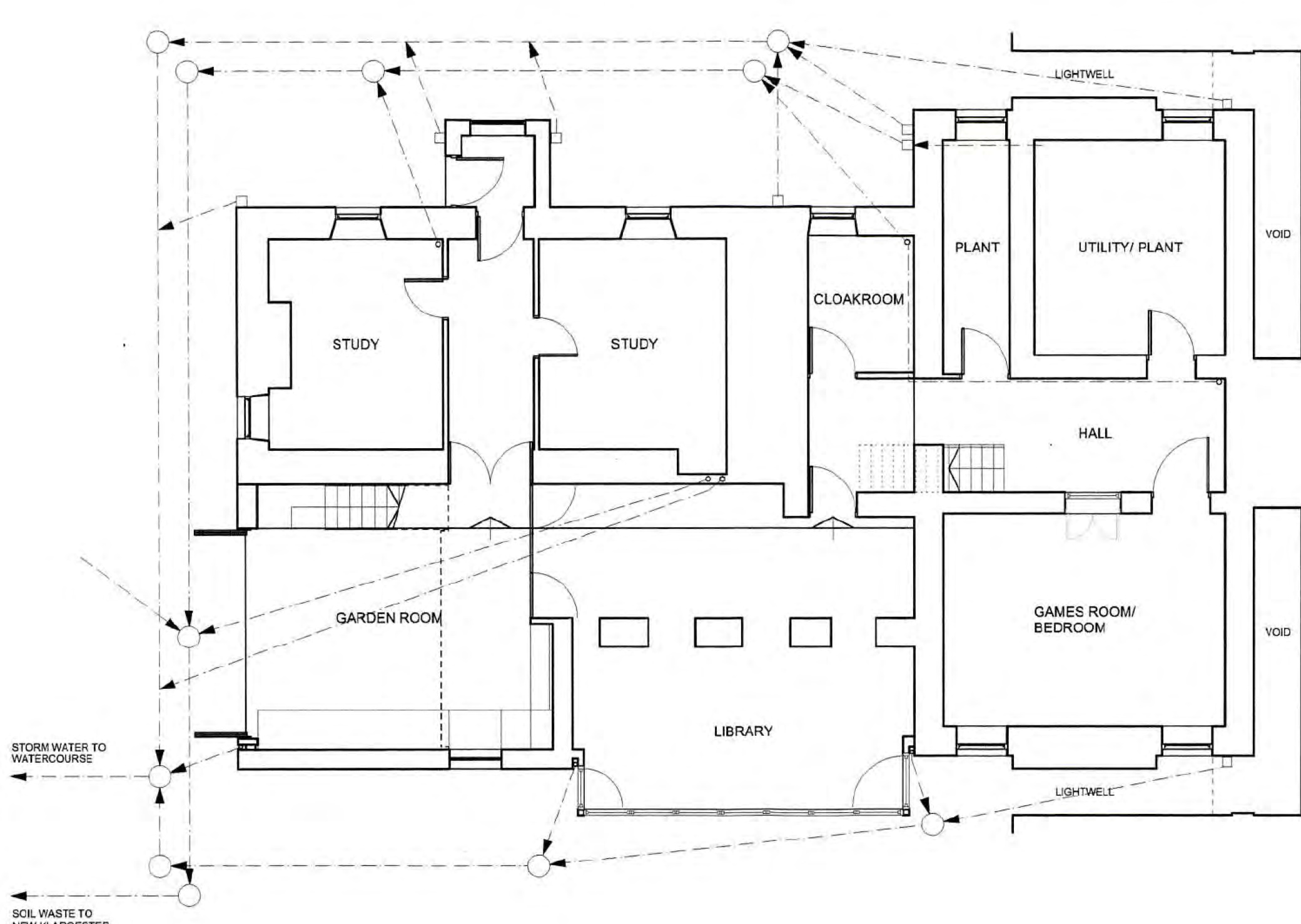
A largely glazed, flat-roofed two storey section with projecting balcony links the more pitch section of the new extension to the Victorian part. This connecting structure incorporates the existing ground floor external stone and its openings wall within the space.
The proposed extension contains an open plan kitchen dining area on the first floor with direct access onto a terrace, maximising views to the south and whilst being in close proximity to the formal ovinge and dining area in the Victorian extension. This space opens out onto a gabled, and viewing area and down to a garden room on the ground floor, both open to, and taking advantage of, the pitch of the rear roof. This area then links back to the entrance hallway of the cottage whilst also providing direct access to the landscape. The garden room and the lower level of the Victorian extension are connected by a new library.
The proposed materials for the extension are a combination of those found on site. The west elevation adjacent to the cottage will be a roughised render which carries around onto the south elevation and up to the chimney stack, which will be finished in a time render. The triangle of the gable will be glazed with timber vertical bounces located in front of the glazing. These will provide shading from the sun reducing heat gain, give the appearance externally of a solid wall whilst also directing the internal view down the valley toward the sea.
The connecting structure between the monophill and Victorian extension will be lightweight with timber framed windows and vertical timber boarding to the balcony, matching the adjacent bounces. The timber will be unfinished and go silver in colour over time.
The pitched roof will be finished in natural slate.
Set within an area designated as of High Landscape Value and Scenic Significance and not designated for any particular purpose, there is provision within the Strategic Plan 2016 for extensions and alterations to existing dwellings which the proposal is in line with.
The extension or alteration of existing traditionally styled properties in the countryside will normally only be approved where these respect the proportion, form and appearance of the existing property. Only exosplionally will permission be granted for extensions which measure more than 50% of the existing building in terms of floor space (measured externally).
A planning approval (19/01/2018 approved 23.12.19) is already in place for refurbishing the existing dwelling, partial demolition of the more recent new additions and replacing them with a modern extension. This application re-examines the rear extension only, all other aspects of the previous approval including vehicular access, will remain the same. Arboriculture conditions stipulated in the approved application will be followed and met.
The previously approved extension added approximately 8% to the existing floor area. This proposal has a reduced footprint, adding approx 6% to the existing floor area, projecting out into the landscape less than the approved scheme.
There will therefore be no new impact on trees as this proposal is smaller than that previously approved.
This modest extension provides modern open plan living whilst acting as a transition zone and link from the formal Victorian dwelling to the original Mane cottage. It bridges the change in scale between the two phases, both internally and externally, referencing both elements in the built form; the pitch of roof, the dominant chimney stack; and utilises traditional materials (slide, render, and timber).
253_Raby Farm • Glen Maye • redacted © homcastlethomas 2017/2018 • 2019/2020

253_Raby Farm • Glen Maye • redacted

Copyright in submitted documents remains with their authors. Request removal
View as Markdown