Skip to content
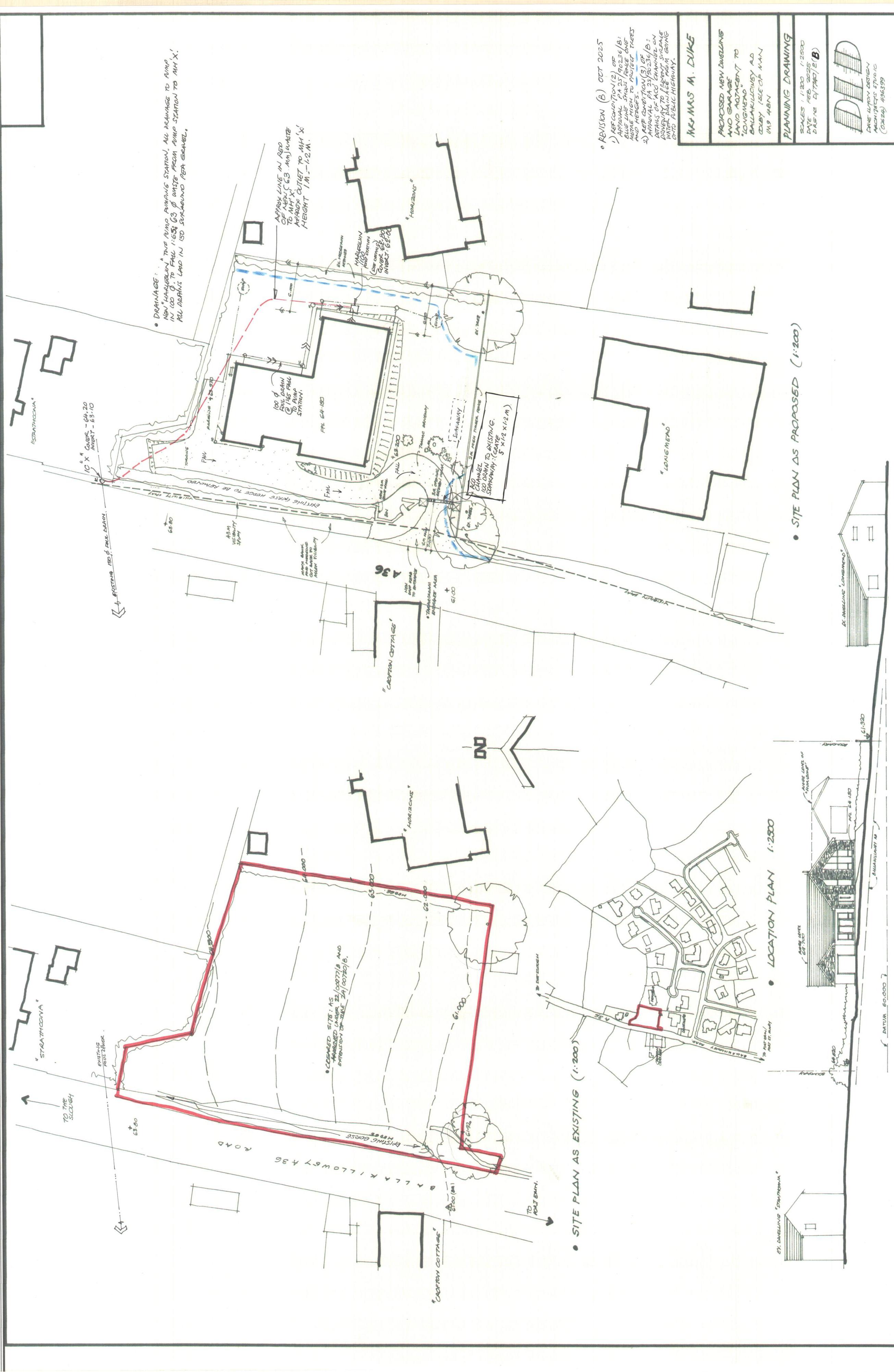
Tree and Hedge Protection Plan - 25/10134/AIR | Planning Portal IoM | Isle of Man Planning Portal