Loading document...
##
Construction \& Design
Project
Remodelling of the front elevation and internal layout of 67 Strand Street, Douglas, to form a double height shop area and facade.
17th January 2018
1.0 Introduction 2.0 Executive Summary 3.0 Site and building 4.0 The Shop 5.0 Summary
Acting on behalf of Victoria Street Properties Ltd, Baxter Construction and Design Ltd have prepared this Planning Statement in support of the alterations to the ground and first floor to create a new facade and double height space for the retail unit.
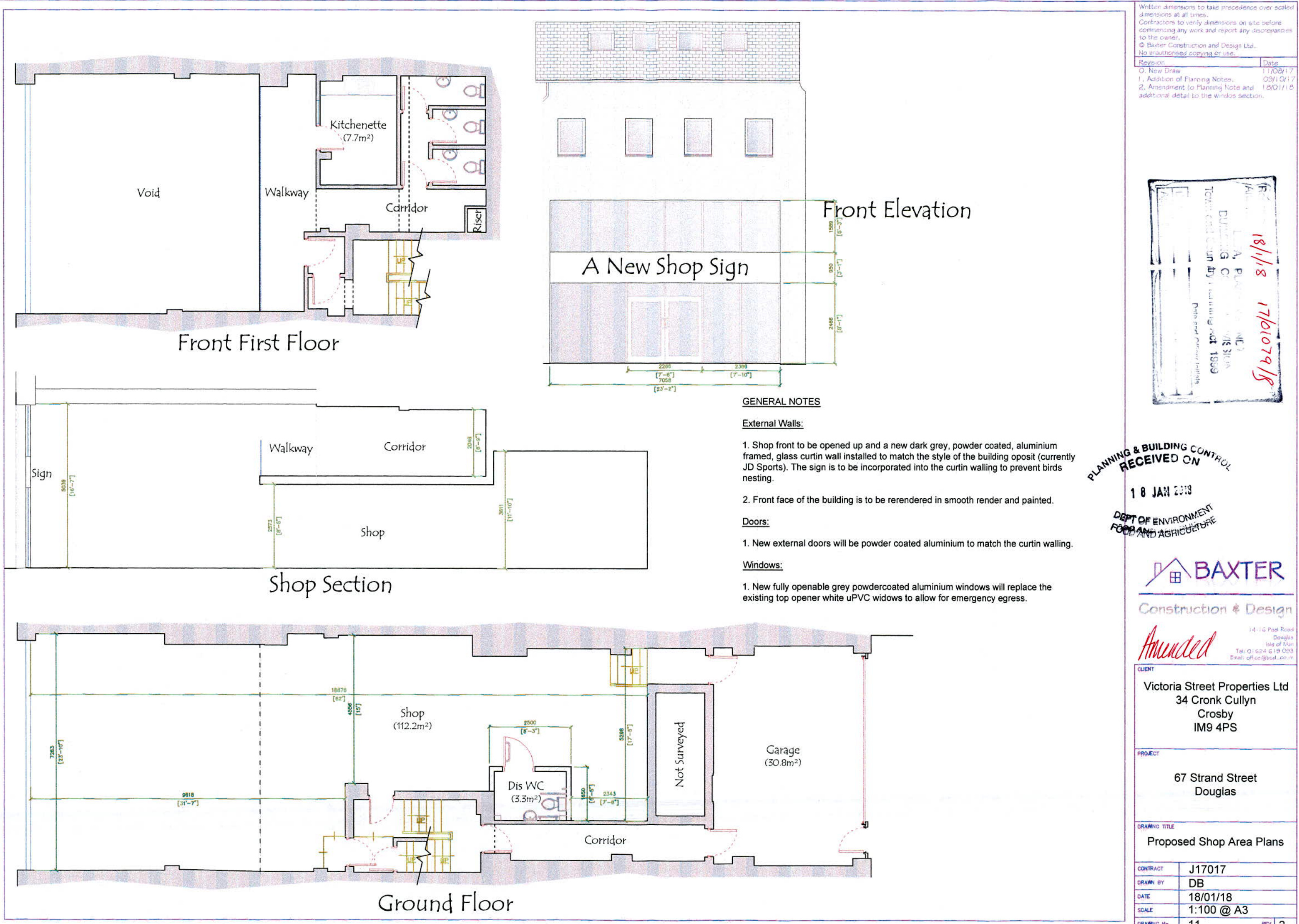
The proposed site is occupied by a four-storey building, the ground floor and first floor of which form an existing retail premises and the remaining floors are offices with Planning approval to convert to apartments. The proposal is to improve the existing shop front which is comprised of an imitation Victorian frontage and modernise the interior which at present has low ceilings and structural columns. This will be achieved by creating a double height shop with glass front and removing the structural columns in order to create a more modern and inviting shopping area in keeping with the new modern buildings that have been erected opposite.
3.1 The proposed site is 67 Strand Street, Douglas. The site is occupied a four-storey Building which has an existing retail premise on the ground and first floor. The building is split level with the floors for the rear half of the building coming off at the half landing. 3.2 The upper floors are currently office space accessible from the rear of the building and have Planning approval for conversion to apartments. 3.3 The existing shop has a very low ceiling ( $2.25 \mathrm{~m} / 7^{\prime} 5^{\prime \prime}$ ) four structural columns in the retail area and an office to the rear. The first floor also has a stock room, staff kitchen and toilets. There are no public toilets nor disabled toilets. 3.4 There are two on site car parking spaces allocated to the retail unit. 3.5 The bin storage area for both the offices and retail unit is situated on Market Street adjacent to the vehicular access ramp.
\#1 - Rear Elevation. 3.6 The front half of the building is constructed from traditional random rubble stonework but was renovated perviously with an internal steel framed structure to support the floors. The rear half of the building is cavity brick built with concrete floors supported on steelwork.
4.1 The existing shop has a very low ceiling ( $2.25 \mathrm{~m} / 7^{\prime} 5^{\prime \prime}$ ) and four structural columns, in such a small shop this allows in little natural light, gives an oppressive feel to the space and severely restricts the layout options for any potential retail business. Our proposal is to remove the ceiling between the stockroom and the shop to create a double height space at the front and to remove the structural columns to give an open and light feel to the shop and allowing flexible use of the floor area within the retail area. To further increase the shop size the existing changing rooms will be removed to incorporate the office into the retail area. 4.2 The existing façade (shown in image \#2 - Front Elevation) will be replaced with a modern framed glass walling system to match the building opposite shown in image \#3 - JD Sports.



\#2 - Front Elevation
\#3 - JD Sports. Baxter Construction and Design Limited | 14-16 Peel Road, Douglas, IM1 4LR | Tel: 01624619093 | Email: [email protected]
##
4.3 The new framing system and the new replacement windows will be dark grey, powder coated, aluminium frames whilst the repaired render will be of a smooth texture with painted finish to complete the modern look. 4.4 A new disabled access WC is to installed on the ground floor to give greater amenities for both customers and staff.
5.1 The proposal will create a greatly improved shopping space with a modern appearance for the retail unit without a detrimental effect on the upper floors.

34 Cronk Cullyn Crosby IM9 4PS
Copyright in submitted documents remains with their authors. Request removal
View as Markdown